Building Summary

Data last updated on: 4/2/2026     Ownership current as of: 3/30/2026     Tax Year: 2026
REID 165917

PIN # 0851-40-2271

Location Address Property Description
10 SANDY BLUFF CT GROVE PARK/WATERS EDGE/SE C:06/LT#509 PL:000139-000090
   
Property Owner Owner's Mailing Address
BOURARA, KHAOULA ABDELKADER;BELGAIED, KAIS
4105 MULLCROFT PL
FUQUAY VARINA NC 27526
Parcel
Buildings
Misc Improvements
Land
Deeds
Notes
Sales
Photos
Map
Building Location Address
10 SANDY BLUFF CT
Building Description
RESFR-RES-FRM-OR-EQ
Card   of  1
Bldg Type RESIDENTIAL
Units 1
Living Area (SQFT) 2129
Number of Stories 2.00
Style CON-CONVENTIONAL
Foundation 03-CONTINOUS-SLAB
Exterior 09-HARD-B/CEMENTBRD
Const Type
Heating 05-PACKAGE-HEAT/COOL
Air Cond
Plumbing Baths (Full):   2
Baths (Half):   1
Extra Fixtures:   0
Total Plumbing Fixtures:   8 
Bedrooms 4
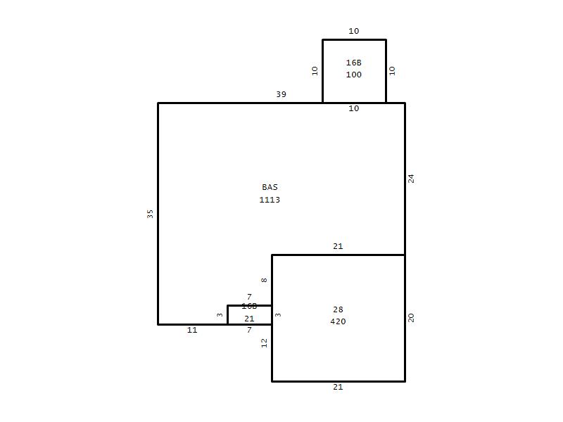
Main Body (SQFT) 1113
Year Built 1998
Additions 5
Effective Year 1998
Remodeled 0
Interior Adj.
Other Features
Building Total & Improvement Details

Grade B+5 125%
Percentage Complete 100
Total Adjusted Replacement Cost New $437,407
Physical Depreciation (% Bad) 0%
Depreciated Value $332,429
Economic Depreciation (% Bad) 0%
Functional Depreciation (% Bad) 0%
Total Depreciated Value $332,429
Market Area Factor 1.00
Building Value $332,429
Misc Improvements Value
Total Improvement Value $332,429

Assessed Land Value $64,811
   
Assessed Total Value $397,240



Addition Summary 
StoryTypeCodeArea
1.00 Concrete Slab 16B 100
1.00 Garage 28 420
1.00 Concrete Slab 16B 21
1.00 Res Frame 2Nd Flr FR02 627
1.00 Res Frm 2Nd Flr Over Garg FR02 389
 
Other Improvements 
 


Building Sketch
Photograph
Building Sketch Building Photo
(Click sketch for bigger image)




Copyright © 2022 Durham County, North Carolina.