Building Summary

Data last updated on: 4/2/2026     Ownership current as of: 3/30/2026     Tax Year: 2026
REID 166030

PIN # 0850-28-8884

Location Address Property Description
537 CROSSVIEW LN GROVE PRK/BELLMDE/SEC:09/ PH:04/LT#451 PL:000142-000048
   
Property Owner Owner's Mailing Address
HATHORN, JULIA FALLON;FALLON, DENIS GEORGE
537 CROSSVIEW LN
DURHAM NC 27703
Parcel
Buildings
Misc Improvements
Land
Deeds
Notes
Sales
Photos
Map
Building Location Address
537 CROSSVIEW LN
Building Description
RESFR-RES-FRM-OR-EQ
Card   of  1
Bldg Type RESIDENTIAL
Units 1
Living Area (SQFT) 1878
Number of Stories 2.00
Style CON-CONVENTIONAL
Foundation 03-CONTINOUS-SLAB
Exterior 09-HARD-B/CEMENTBRD
Const Type
Heating 05-PACKAGE-HEAT/COOL
Air Cond
Plumbing Baths (Full):   2
Baths (Half):   1
Extra Fixtures:   0
Total Plumbing Fixtures:   8 
Bedrooms 3
Main Body (SQFT) 775
Year Built 1999
Additions 5
Effective Year 1999
Remodeled 0
Interior Adj.
Other Features
Building Total & Improvement Details

Grade B+5 125%
Percentage Complete 100
Total Adjusted Replacement Cost New $409,357
Physical Depreciation (% Bad) 0%
Depreciated Value $315,205
Economic Depreciation (% Bad) 0%
Functional Depreciation (% Bad) 0%
Total Depreciated Value $315,205
Market Area Factor 1.00
Building Value $315,205
Misc Improvements Value
Total Improvement Value $315,205

Assessed Land Value $61,211
   
Assessed Total Value $376,416



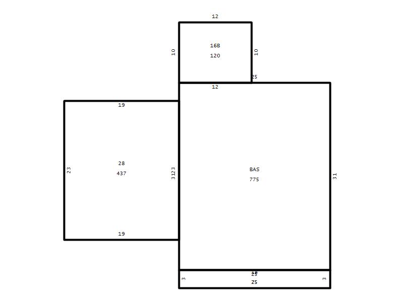
Addition Summary 
StoryTypeCodeArea
1.00 Concrete Slab 16B 120
1.00 Covered Porch 18 75
1.00 Garage 28 437
1.00 Res Frame 2Nd Flr FR02 775
1.00 Res Frm 2Nd Flr Over Garg FR02 328
 
Other Improvements 
 


Building Sketch
Photograph
Building Sketch Building Photo
(Click sketch for bigger image)




Copyright © 2022 Durham County, North Carolina.