Building Summary

Data last updated on: 4/23/2026     Ownership current as of: 4/21/2026     Tax Year: 2026
REID 166203

PIN # 0860-08-0269

Location Address Property Description
502 HIDDENBROOK DR PROP-NICHOLS GLADYS T MRS /BLK:B/LT#03 PL:000077-000031
   
Property Owner Owner's Mailing Address
OTERO, JESSICA LYNN;OTERO, JAVI
502 HIDDENBROOK DR
DURHAM NC 27703
Parcel
Buildings
Misc Improvements
Land
Deeds
Notes
Sales
Photos
Map
Building Location Address
502 HIDDENBROOK DR
Building Description
RESFR-RES-FRM-OR-EQ
Card   of  1
Bldg Type RESIDENTIAL
Units 1
Living Area (SQFT) 1925
Number of Stories 1.00
Style CON-CONVENTIONAL
Foundation 04-P-FOOTING/CRWL-SP
Exterior 09-HARD-B/CEMENTBRD
Const Type
Heating 05-PACKAGE-HEAT/COOL
Air Cond
Plumbing Baths (Full):   2
Baths (Half):   1
Extra Fixtures:   0
Total Plumbing Fixtures:   8 
Bedrooms 5
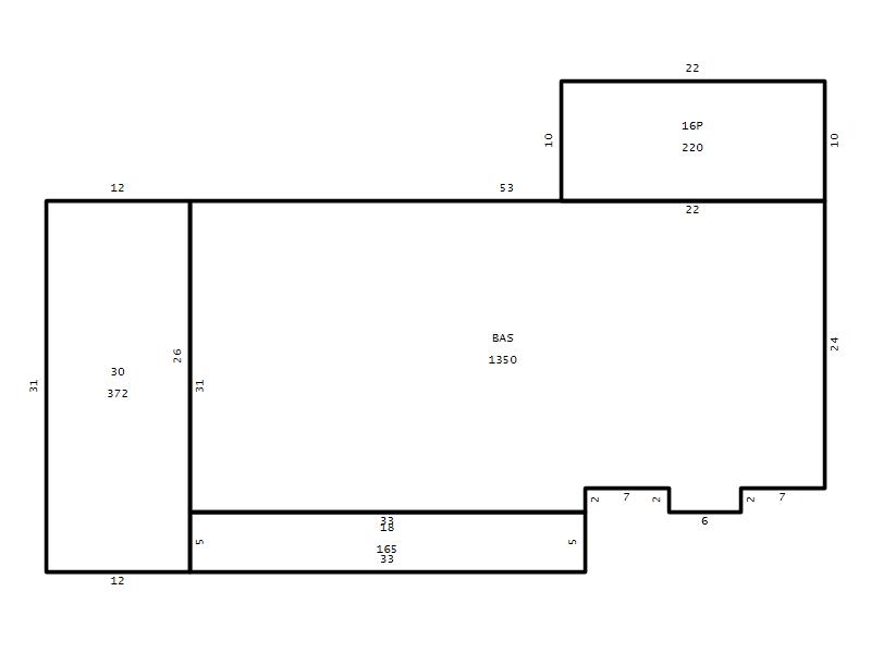
Main Body (SQFT) 1350
Year Built 1976
Additions 4
Effective Year 1976
Remodeled 0
Interior Adj.
Other Features
Building Total & Improvement Details

Grade C+ 110%
Percentage Complete 100
Total Adjusted Replacement Cost New $374,834
Physical Depreciation (% Bad) 0%
Depreciated Value $243,642
Economic Depreciation (% Bad) 0%
Functional Depreciation (% Bad) 0%
Total Depreciated Value $243,642
Market Area Factor 1.00
Building Value $243,642
Misc Improvements Value $1,664
Total Improvement Value $245,306

Assessed Land Value $162,632
   
Assessed Total Value $407,938



Addition Summary 
StoryTypeCodeArea
1.00 Patio 16P 220
1.00 Covered Porch 18 165
1.00 Carport 30 372
1.00 Lower Living Area LL 575
 
Other Improvements 
UnitsDescriptionItemCodeYear% BadValue
8x12 DIMENSIONS Shed (Open Pole) 1976 75 218
20x34 DIMENSIONS Shed (Open Pole) 1976 75 1446
 


Building Sketch
Photograph
Building Sketch Building Photo
(Click sketch for bigger image)




Copyright © 2022 Durham County, North Carolina.