Building Summary

Data last updated on: 4/23/2026     Ownership current as of: 4/21/2026     Tax Year: 2026
REID 166289

PIN # 0850-88-5619

Location Address Property Description
322 ROBBINS RD PROP-SHERRON B H/PROP-MAY TON RONALD/LT#32-35 INCL PL:000048-000174
   
Property Owner Owner's Mailing Address
BOURNE, DAVID JOSHUA;BOURNE, FAITH G
322 ROBBINS RD
DURHAM NC 27703
Parcel
Buildings
Misc Improvements
Land
Deeds
Notes
Sales
Photos
Map
Building Location Address
322 ROBBINS RD
Building Description
RESMS-RES-MS-OR-EQ
Card   of  1
Bldg Type RESIDENTIAL
Units 1
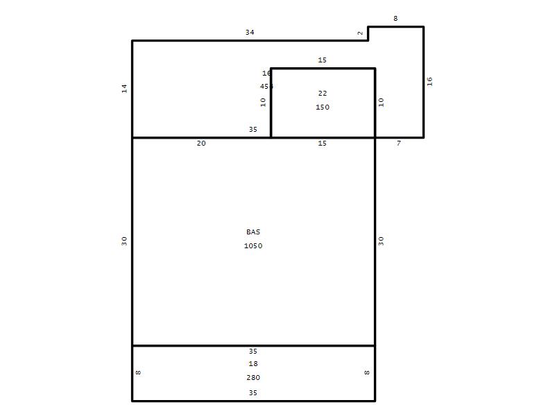
Living Area (SQFT) 1050
Number of Stories 1.00
Style RAN-RANCH
Foundation 04-P-FOOTING/CRWL-SP
Exterior 02-BRICK
Const Type
Heating 03-FORCED-HOT-AIR
Air Cond
Plumbing Baths (Full):   1
Baths (Half):   0
Extra Fixtures:   0
Total Plumbing Fixtures:   3 
Bedrooms 3
Main Body (SQFT) 1050
Year Built 1957
Additions 3
Effective Year 1957
Remodeled 0
Interior Adj.
Other Features
Building Total & Improvement Details

Grade C 100%
Percentage Complete 100
Total Adjusted Replacement Cost New $236,755
Physical Depreciation (% Bad) 0%
Depreciated Value $130,215
Economic Depreciation (% Bad) 0%
Functional Depreciation (% Bad) 0%
Total Depreciated Value $130,215
Market Area Factor 1.00
Building Value $130,215
Misc Improvements Value $17,112
Total Improvement Value $147,327

Assessed Land Value $129,775
   
Assessed Total Value $277,102



Addition Summary 
StoryTypeCodeArea
1.00 Frame Deck 16 454
1.00 Covered Porch 18 280
1.00 Enclosed Porch 22 150
 
Other Improvements 
UnitsDescriptionItemCodeYear% BadValue
576 SIZE Garage Frame 1978 70 9217
480 SIZE Carport w/Floor 1989 60 6180
16x18 DIMENSIONS Lean To 1957 75 122
6x24 DIMENSIONS Deck 1985 60 1261
13x24 DIMENSIONS Shed (Open Pole) 1957 75 332
 


Building Sketch
Photograph
Building Sketch Building Photo
(Click sketch for bigger image)




Copyright © 2022 Durham County, North Carolina.