Building Summary

Data last updated on: 1/30/2026     Ownership current as of: 1/16/2026     Tax Year: 2026
REID 166364

PIN # 0861-10-7553

Location Address Property Description
5121 WAKE FOREST HWY PROP-HUBBARD STEPHEN R-MA RTHA H PL:000000-000000
   
Property Owner Owner's Mailing Address
EVERHART, MICHAEL KEN;EVERHART, ANGELA LAUREN E
5203 WAKE FOREST HWY
DURHAM NC 27703

Value subject to change, property assessment under review

Parcel
Buildings
Misc Improvements
Land
Deeds
Notes
Sales
Photos
Map
Building Location Address
5121 WAKE FOREST HWY
Building Description
RESFR-RES-FRM-OR-EQ
Card   of  1
Bldg Type RESIDENTIAL
Units 1
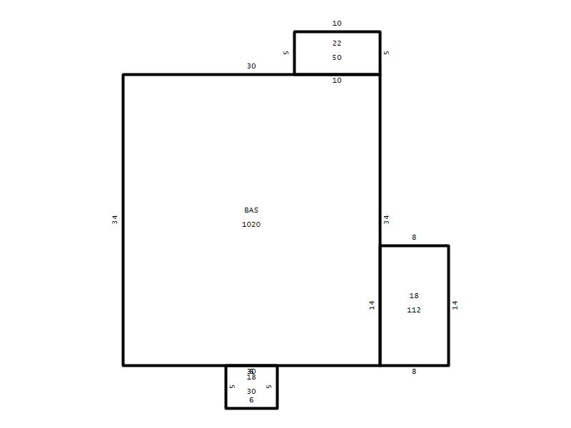
Living Area (SQFT) 1020
Number of Stories 1.00
Style RAN-RANCH
Foundation 04-P-FOOTING/CRWL-SP
Exterior 08-VINYL/ALUMINUM
Const Type
Heating 05-PACKAGE-HEAT/COOL
Air Cond
Plumbing Baths (Full):   1
Baths (Half):   0
Extra Fixtures:   0
Total Plumbing Fixtures:   3 
Bedrooms 2
Main Body (SQFT) 1020
Year Built 1947
Additions 3
Effective Year 1947
Remodeled 0
Interior Adj.
Other Features
Building Total & Improvement Details

Grade C+20 120%
Percentage Complete 100
Total Adjusted Replacement Cost New
Physical Depreciation (% Bad) 0%
Depreciated Value
Economic Depreciation (% Bad) 0%
Functional Depreciation (% Bad) 0%
Total Depreciated Value
Market Area Factor 1.00
Building Value
Misc Improvements Value
Total Improvement Value

Assessed Land Value
   
Assessed Total Value



Addition Summary 
StoryTypeCodeArea
1.00 Covered Porch 18 30
1.00 Enclosed Porch 22 50
1.00 Covered Porch 18 112
 
Other Improvements 
UnitsDescriptionItemCodeYear% BadValue
720 SIZE Garage Frame 1976 70
560 SIZE Carport w/Floor 1987 60
504 SIZE Swimming Pool/Fiberglass 1988 50
10x18 DIMENSIONS Shed Personal Property 2000 75
 


Building Sketch
Photograph
Building Sketch Building Photo
(Click sketch for bigger image)




Copyright © 2022 Durham County, North Carolina.