Building Summary

Data last updated on: 4/2/2026     Ownership current as of: 3/30/2026     Tax Year: 2026
REID 166436

PIN # 0851-67-7037

Location Address Property Description
4918 TYNE DR GREENWOOD/SEC:01A/LT#014 PL:000106-000189
   
Property Owner Owner's Mailing Address
EAR, BELINDA P
4918 TYNE DR
DURHAM NC 27703
Parcel
Buildings
Misc Improvements
Land
Deeds
Notes
Sales
Photos
Map
Building Location Address
4918 TYNE DR
Building Description
RESFR-RES-FRM-OR-EQ
Card   of  1
Bldg Type RESIDENTIAL
Units 1
Living Area (SQFT) 1772
Number of Stories 2.00
Style COL-COLONIAL
Foundation 03-CONTINOUS-SLAB
Exterior 08-VINYL/ALUMINUM
Const Type
Heating 05-PACKAGE-HEAT/COOL
Air Cond
Plumbing Baths (Full):   2
Baths (Half):   1
Extra Fixtures:   0
Total Plumbing Fixtures:   8 
Bedrooms 3
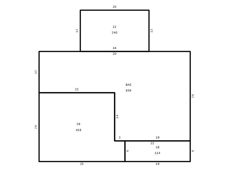
Main Body (SQFT) 836
Year Built 1985
Additions 5
Effective Year 1985
Remodeled 0
Interior Adj.
Other Features
Building Total & Improvement Details

Grade B+10 130%
Percentage Complete 100
Total Adjusted Replacement Cost New $436,887
Physical Depreciation (% Bad) 0%
Depreciated Value $375,723
Economic Depreciation (% Bad) 0%
Functional Depreciation (% Bad) 0%
Total Depreciated Value $375,723
Market Area Factor 1.00
Building Value $375,723
Misc Improvements Value
Total Improvement Value $375,723

Assessed Land Value $64,635
   
Assessed Total Value $440,358



Addition Summary 
StoryTypeCodeArea
1.00 Covered Porch 18 114
1.00 Enclosed Porch 22 240
1.00 Garage 28 458
1.00 Res Frame 2Nd Flr FR02 740
1.00 Res Frm 2Nd Flr Over Garg FR02 196
 
Other Improvements 
 


Building Sketch
Photograph
Building Sketch Building Photo
(Click sketch for bigger image)




Copyright © 2022 Durham County, North Carolina.