Building Summary

Data last updated on: 4/2/2026     Ownership current as of: 3/30/2026     Tax Year: 2026
REID 166479

PIN # 0851-66-4500

Location Address Property Description
4807 TYNE DR GREENWOOD/PH:01/SEC:C/LT# 288 PL:000108-000038
   
Property Owner Owner's Mailing Address
ROSARIO, ROSANNA M;RODRIGUEZ, ROSA MARGARITA
5901 TATTERSALL DR 1212
DURHAM NC 27713
Parcel
Buildings
Misc Improvements
Land
Deeds
Notes
Sales
Photos
Map
Building Location Address
4807 TYNE DR
Building Description
RESFR-RES-FRM-OR-EQ
Card   of  1
Bldg Type RESIDENTIAL
Units 1
Living Area (SQFT) 1524
Number of Stories 1.00
Style BTS-BI/TRI/SPLT-LEVL
Foundation 06-BASEMENT
Exterior 08-VINYL/ALUMINUM
Const Type
Heating 05-PACKAGE-HEAT/COOL
Air Cond
Plumbing Baths (Full):   1
Baths (Half):   1
Extra Fixtures:   0
Total Plumbing Fixtures:   5 
Bedrooms 2
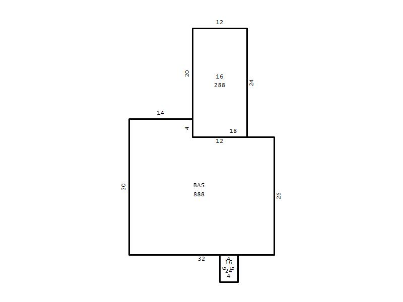
Main Body (SQFT) 888
Year Built 1986
Additions 3
Effective Year 1986
Remodeled 0
Interior Adj.
Other Features
Building Total & Improvement Details

Grade B+10 130%
Percentage Complete 100
Total Adjusted Replacement Cost New $316,878
Physical Depreciation (% Bad) 0%
Depreciated Value $221,815
Economic Depreciation (% Bad) 0%
Functional Depreciation (% Bad) 0%
Total Depreciated Value $221,815
Market Area Factor 1.00
Building Value $221,815
Misc Improvements Value
Total Improvement Value $221,815

Assessed Land Value $64,170
   
Assessed Total Value $285,985



Addition Summary 
StoryTypeCodeArea
1.00 Frame Deck 16 288
1.00 Frame Deck 16 24
1.00 Finished Basement 14 636
 
Other Improvements 
 


Building Sketch
Photograph
Building Sketch Building Photo
(Click sketch for bigger image)




Copyright © 2022 Durham County, North Carolina.