Building Summary

Data last updated on: 4/2/2026     Ownership current as of: 3/30/2026     Tax Year: 2026
REID 166751

PIN # 0851-45-5770

Location Address Property Description
59 ENESCO CIR GREENWOOD/PH:03/SEC:B/LT#93 PL:000115-000092
   
Property Owner Owner's Mailing Address
VILLAREAL-MUNGUIA, JORGE ADRIAN;SANTOS, DILMA MILADY
59 ENESCO CIR
DURHAM NC 27703
Parcel
Buildings
Misc Improvements
Land
Deeds
Notes
Sales
Photos
Map
Building Location Address
59 ENESCO CIR
Building Description
RESFR-RES-FRM-OR-EQ
Card   of  1
Bldg Type RESIDENTIAL
Units 1
Living Area (SQFT) 1560
Number of Stories 2.00
Style COL-COLONIAL
Foundation 03-CONTINOUS-SLAB
Exterior 08-VINYL/ALUMINUM
Const Type
Heating 05-PACKAGE-HEAT/COOL
Air Cond
Plumbing Baths (Full):   2
Baths (Half):   1
Extra Fixtures:   0
Total Plumbing Fixtures:   8 
Bedrooms 3
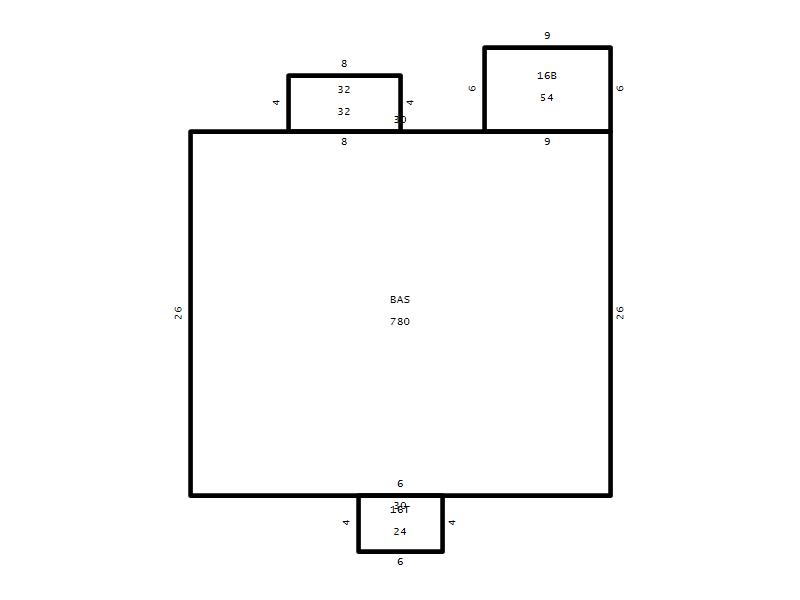
Main Body (SQFT) 780
Year Built 1988
Additions 4
Effective Year 1988
Remodeled 0
Interior Adj.
Other Features
Building Total & Improvement Details

Grade B+10 130%
Percentage Complete 100
Total Adjusted Replacement Cost New $335,914
Physical Depreciation (% Bad) 0%
Depreciated Value $238,499
Economic Depreciation (% Bad) 0%
Functional Depreciation (% Bad) 0%
Total Depreciated Value $238,499
Market Area Factor 1.00
Building Value $238,499
Misc Improvements Value
Total Improvement Value $238,499

Assessed Land Value $62,310
   
Assessed Total Value $300,809



Addition Summary 
StoryTypeCodeArea
1.00 Concrete Slab 16B 54
1.00 Terrace/Raised Patio 16T 24
1.00 Storage Utility 32 32
1.00 Res Frame 2Nd Flr FR02 780
 
Other Improvements 
UnitsDescriptionItemCodeYear% BadValue
8x10 DIMENSIONS Shed Personal Property 2003 75
 


Building Sketch
Photograph
Building Sketch Building Photo
(Click sketch for bigger image)




Copyright © 2022 Durham County, North Carolina.