Building Summary

Data last updated on: 4/2/2026     Ownership current as of: 3/30/2026     Tax Year: 2026
REID 166939

PIN # 0851-62-9577

Location Address Property Description
107 CROSSWOOD DR GROVE PRK-LNKSD/BKDL/WHSP WD/LT#250 PL:000149-000087
   
Property Owner Owner's Mailing Address
OPENDOOR PROPERTY TRUST I
1295 W WASHINGTON ST STE 115
TEMPE AZ 85281
Parcel
Buildings
Misc Improvements
Land
Deeds
Notes
Sales
Photos
Map
Building Location Address
107 CROSSWOOD DR
Building Description
RESFR-RES-FRM-OR-EQ
Card   of  1
Bldg Type RESIDENTIAL
Units 1
Living Area (SQFT) 1992
Number of Stories 2.00
Style CON-CONVENTIONAL
Foundation 04-P-FOOTING/CRWL-SP
Exterior 09-HARD-B/CEMENTBRD
Const Type
Heating 05-PACKAGE-HEAT/COOL
Air Cond
Plumbing Baths (Full):   2
Baths (Half):   1
Extra Fixtures:   0
Total Plumbing Fixtures:   8 
Bedrooms 4
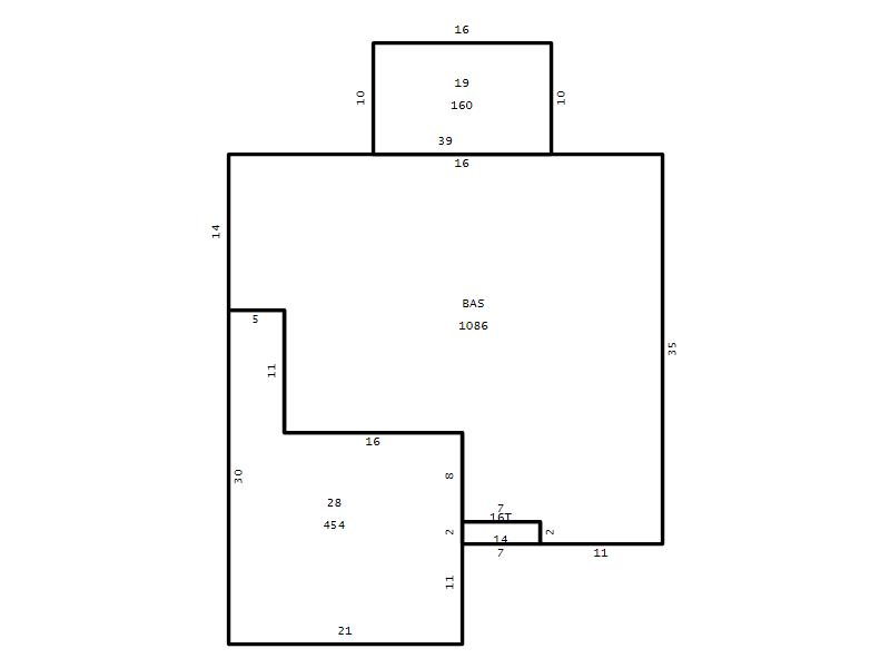
Main Body (SQFT) 1086
Year Built 2002
Additions 5
Effective Year 2002
Remodeled 0
Interior Adj.
Other Features
Building Total & Improvement Details

Grade B- 115%
Percentage Complete 100
Total Adjusted Replacement Cost New $408,216
Physical Depreciation (% Bad) 0%
Depreciated Value $322,491
Economic Depreciation (% Bad) 0%
Functional Depreciation (% Bad) 0%
Total Depreciated Value $322,491
Market Area Factor 1.00
Building Value $322,491
Misc Improvements Value
Total Improvement Value $322,491

Assessed Land Value $86,250
   
Assessed Total Value $408,741



Addition Summary 
StoryTypeCodeArea
1.00 Terrace/Raised Patio 16T 14
1.00 Screen Porch 19 160
1.00 Garage 28 454
1.00 Res Frame 2Nd Flr FR02 484
1.00 Res Frm 2Nd Flr Over Garg FR02 422
 
Other Improvements 
 


Building Sketch
Photograph
Building Sketch Building Photo
(Click sketch for bigger image)




Copyright © 2022 Durham County, North Carolina.