Building Summary

Data last updated on: 4/2/2026     Ownership current as of: 3/30/2026     Tax Year: 2026
REID 167012

PIN # 0851-84-6763

Location Address Property Description
4 FIRE ROCK PL MARBREY LANDING/PH:01/LT# 156 PL:000137-000216
   
Property Owner Owner's Mailing Address
REINHART, JACLYN MARIE
4 FIRE ROCK PL
DURHAM NC 27703
Parcel
Buildings
Misc Improvements
Land
Deeds
Notes
Sales
Photos
Map
Building Location Address
4 FIRE ROCK PL
Building Description
RESFR-RES-FRM-OR-EQ
Card   of  1
Bldg Type RESIDENTIAL
Units 1
Living Area (SQFT) 1440
Number of Stories 2.00
Style CON-CONVENTIONAL
Foundation 04-P-FOOTING/CRWL-SP
Exterior 08-VINYL/ALUMINUM
Const Type
Heating 05-PACKAGE-HEAT/COOL
Air Cond
Plumbing Baths (Full):   2
Baths (Half):   1
Extra Fixtures:   0
Total Plumbing Fixtures:   8 
Bedrooms 3
Main Body (SQFT) 720
Year Built 1997
Additions 4
Effective Year 1997
Remodeled 0
Interior Adj.
Other Features
Building Total & Improvement Details

Grade B+10 130%
Percentage Complete 100
Total Adjusted Replacement Cost New $357,713
Physical Depreciation (% Bad) 0%
Depreciated Value $271,862
Economic Depreciation (% Bad) 0%
Functional Depreciation (% Bad) 0%
Total Depreciated Value $271,862
Market Area Factor 1.00
Building Value $271,862
Misc Improvements Value
Total Improvement Value $271,862

Assessed Land Value $57,660
   
Assessed Total Value $329,522



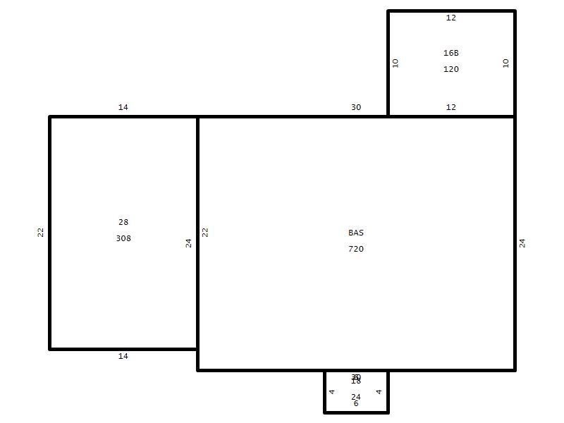
Addition Summary 
StoryTypeCodeArea
1.00 Concrete Slab 16B 120
1.00 Covered Porch 18 24
1.00 Garage 28 308
1.00 Res Frame 2Nd Flr FR02 720
 
Other Improvements 
 


Building Sketch
Photograph
Building Sketch Building Photo
(Click sketch for bigger image)




Copyright © 2022 Durham County, North Carolina.