Building Summary

Data last updated on: 4/2/2026     Ownership current as of: 3/30/2026     Tax Year: 2026
REID 167018

PIN # 0851-75-7623

Location Address Property Description
5609 THISTLEROCK LN MARBREY LANDING/PH:05/LT# 036 PL:000141-000138
   
Property Owner Owner's Mailing Address
HINTON, JULIUS;HINTON, RACHEL
5609 THISTLEROCK LN
DURHAM NC 27703
Parcel
Buildings
Misc Improvements
Land
Deeds
Notes
Sales
Photos
Map
Building Location Address
5609 THISTLEROCK LN
Building Description
RESFR-RES-FRM-OR-EQ
Card   of  1
Bldg Type RESIDENTIAL
Units 1
Living Area (SQFT) 1708
Number of Stories 2.00
Style CON-CONVENTIONAL
Foundation 04-P-FOOTING/CRWL-SP
Exterior 08-VINYL/ALUMINUM
Const Type
Heating 05-PACKAGE-HEAT/COOL
Air Cond
Plumbing Baths (Full):   2
Baths (Half):   1
Extra Fixtures:   0
Total Plumbing Fixtures:   8 
Bedrooms 3
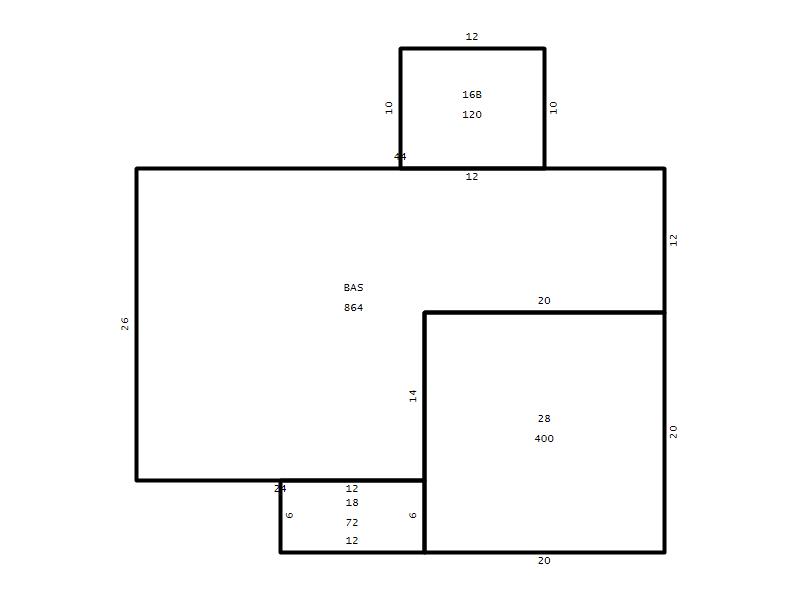
Main Body (SQFT) 864
Year Built 1999
Additions 5
Effective Year 1999
Remodeled 0
Interior Adj.
Other Features
Building Total & Improvement Details

Grade B+10 130%
Percentage Complete 100
Total Adjusted Replacement Cost New $408,685
Physical Depreciation (% Bad) 0%
Depreciated Value $314,687
Economic Depreciation (% Bad) 0%
Functional Depreciation (% Bad) 0%
Total Depreciated Value $314,687
Market Area Factor 1.00
Building Value $314,687
Misc Improvements Value
Total Improvement Value $314,687

Assessed Land Value $57,195
   
Assessed Total Value $371,882



Addition Summary 
StoryTypeCodeArea
1.00 Concrete Slab 16B 120
1.00 Covered Porch 18 72
1.00 Garage 28 400
1.00 Res Frame 2Nd Flr FR02 564
1.00 Res Frm 2Nd Flr Over Garg FR02 280
 
Other Improvements 
UnitsDescriptionItemCodeYear% BadValue
10x10 DIMENSIONS Shed Personal Property 2009 75
 


Building Sketch
Photograph
Building Sketch Building Photo
(Click sketch for bigger image)




Copyright © 2022 Durham County, North Carolina.