Building Summary

Data last updated on: 4/2/2026     Ownership current as of: 3/30/2026     Tax Year: 2026
REID 167025

PIN # 0851-75-7303

Location Address Property Description
5603 THISTLEROCK LN MARBREY LANDING/PH:04/LT# 029 PL:000141-000138
   
Property Owner Owner's Mailing Address
AMNL ASSET COMPANY 1 LLC
3903 S CONGRESS AVE STE 40298
AUSTIN TX 78704
Parcel
Buildings
Misc Improvements
Land
Deeds
Notes
Sales
Photos
Map
Building Location Address
5603 THISTLEROCK LN
Building Description
RESFR-RES-FRM-OR-EQ
Card   of  1
Bldg Type RESIDENTIAL
Units 1
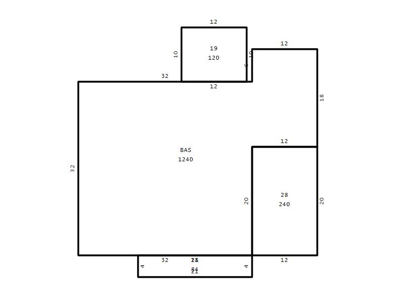
Living Area (SQFT) 1240
Number of Stories 1.00
Style RAN-RANCH
Foundation 04-P-FOOTING/CRWL-SP
Exterior 08-VINYL/ALUMINUM
Const Type
Heating 05-PACKAGE-HEAT/COOL
Air Cond
Plumbing Baths (Full):   2
Baths (Half):   0
Extra Fixtures:   0
Total Plumbing Fixtures:   6 
Bedrooms 3
Main Body (SQFT) 1240
Year Built 1999
Additions 3
Effective Year 1999
Remodeled 0
Interior Adj.
Other Features
Building Total & Improvement Details

Grade B+10 130%
Percentage Complete 100
Total Adjusted Replacement Cost New $332,025
Physical Depreciation (% Bad) 0%
Depreciated Value $255,659
Economic Depreciation (% Bad) 0%
Functional Depreciation (% Bad) 0%
Total Depreciated Value $255,659
Market Area Factor 1.00
Building Value $255,659
Misc Improvements Value
Total Improvement Value $255,659

Assessed Land Value $57,660
   
Assessed Total Value $313,319



Addition Summary 
StoryTypeCodeArea
1.00 Covered Porch 18 84
1.00 Screen Porch 19 120
1.00 Garage 28 240
 
Other Improvements 
 


Building Sketch
Photograph
Building Sketch Building Photo
(Click sketch for bigger image)




Copyright © 2022 Durham County, North Carolina.