Building Summary

Data last updated on: 3/31/2026     Ownership current as of: 3/26/2026     Tax Year: 2026
REID 167033

PIN # 0851-52-9019

Location Address Property Description
110 KINDLEWOOD DR GROVE PARK/LINKSIDE/PH:02 /LT#051 PL:000138-000073
   
Property Owner Owner's Mailing Address
PADILLA, TIFFANY LANELLE;PADILLA, NICOLAS
2208 LAVENDER FLD WAY
APEX NC 27523
Parcel
Buildings
Misc Improvements
Land
Deeds
Notes
Sales
Photos
Map
Building Location Address
110 KINDLEWOOD DR
Building Description
RESFR-RES-FRM-OR-EQ
Card   of  1
Bldg Type RESIDENTIAL
Units 1
Living Area (SQFT) 2209
Number of Stories 2.00
Style CON-CONVENTIONAL
Foundation 03-CONTINOUS-SLAB
Exterior 09-HARD-B/CEMENTBRD
Const Type
Heating 05-PACKAGE-HEAT/COOL
Air Cond
Plumbing Baths (Full):   2
Baths (Half):   1
Extra Fixtures:   0
Total Plumbing Fixtures:   8 
Bedrooms 4
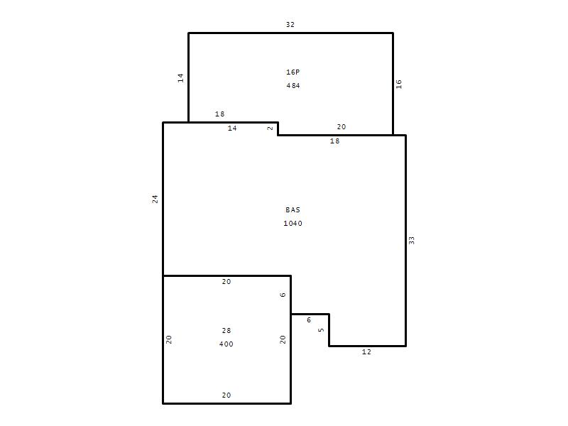
Main Body (SQFT) 1040
Year Built 1999
Additions 4
Effective Year 1999
Remodeled 0
Interior Adj.
Other Features
Building Total & Improvement Details

Grade B- 115%
Percentage Complete 100
Total Adjusted Replacement Cost New $418,988
Physical Depreciation (% Bad) 0%
Depreciated Value $322,621
Economic Depreciation (% Bad) 0%
Functional Depreciation (% Bad) 0%
Total Depreciated Value $322,621
Market Area Factor 1.00
Building Value $322,621
Misc Improvements Value
Total Improvement Value $322,621

Assessed Land Value $88,500
   
Assessed Total Value $411,121



Addition Summary 
StoryTypeCodeArea
1.00 Patio 16P 484
1.00 Garage 28 400
1.00 Res Frame 2Nd Flr FR02 814
1.00 Res Frm 2Nd Flr Over Garg FR02 355
 
Other Improvements 
 


Building Sketch
Photograph
Building Sketch Building Photo
(Click sketch for bigger image)




Copyright © 2022 Durham County, North Carolina.