Building Summary

Data last updated on: 4/2/2026     Ownership current as of: 3/30/2026     Tax Year: 2026
REID 106807

PIN # 0822-89-3488

Location Address Property Description
3000 GLENDALE AVE GLENDALE HEIGHTS EXT/SEC: 02/BLK:06/LT#12 PL:000034-000020
   
Property Owner Owner's Mailing Address
FYR SFR BORROWER LLC
PO BOX 4090
SCOTTSDALE AZ 85261
Parcel
Buildings
Misc Improvements
Land
Deeds
Notes
Sales
Photos
Map
Building Location Address
3000 GLENDALE AVE
Building Description
RESMS-RES-MS-OR-EQ
Card   of  1
Bldg Type RESIDENTIAL
Units 1
Living Area (SQFT) 2288
Number of Stories 1.00
Style RAN-RANCH
Foundation 06-BASEMENT
Exterior 02-BRICK
Const Type
Heating 05-PACKAGE-HEAT/COOL
Air Cond
Plumbing Baths (Full):   1
Baths (Half):   1
Extra Fixtures:   0
Total Plumbing Fixtures:   5 
Bedrooms 3
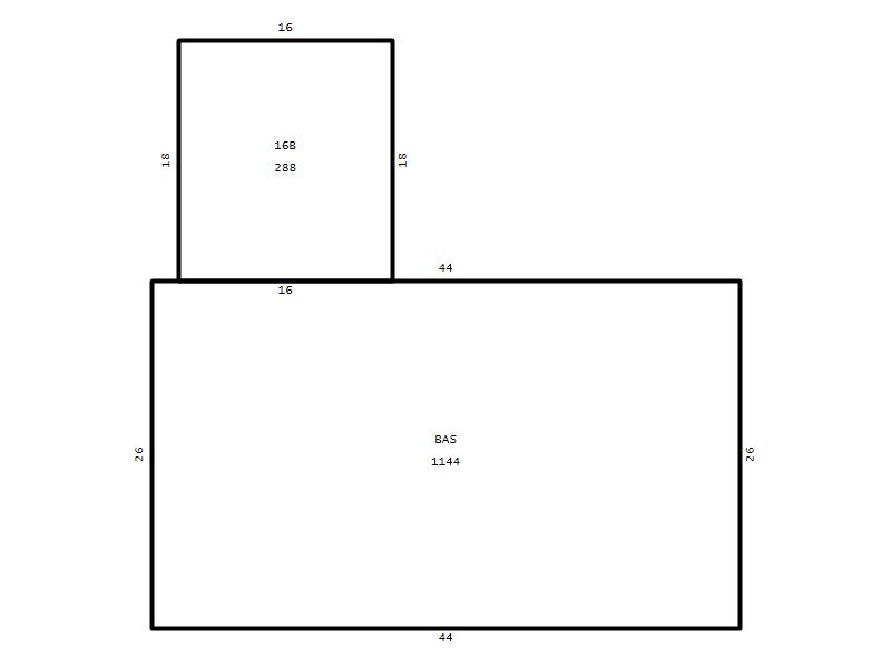
Main Body (SQFT) 1144
Year Built 1961
Additions 2
Effective Year 1961
Remodeled 0
Interior Adj.
Other Features
Building Total & Improvement Details

Grade C 100%
Percentage Complete 100
Total Adjusted Replacement Cost New $310,077
Physical Depreciation (% Bad) 0%
Depreciated Value $170,542
Economic Depreciation (% Bad) 0%
Functional Depreciation (% Bad) 0%
Total Depreciated Value $170,542
Market Area Factor 1.00
Building Value $170,542
Misc Improvements Value
Total Improvement Value $170,542

Assessed Land Value $161,700
   
Assessed Total Value $332,242



Addition Summary 
StoryTypeCodeArea
1.00 Concrete Slab 16B 288
1.00 Finished Basement 14 1144
 
Other Improvements 
 


Building Sketch
Photograph
Building Sketch Building Photo
(Click sketch for bigger image)




Copyright © 2022 Durham County, North Carolina.