Building Summary

Data last updated on: 3/13/2026     Ownership current as of: 3/9/2026     Tax Year: 2026
REID 106819

PIN # 0822-89-2409

Location Address Property Description
808 W MURRAY AVE GLENDALE HEIGHTS EXT/SEC: 02/BLK:07/LT#08 PL:000034-000020
   
Property Owner Owner's Mailing Address
CAROLINA COMMUNITY INVESTMENTS INC
811 9TH ST, STE 120 BOX# 113
DURHAM NC 27705
Parcel
Buildings
Misc Improvements
Land
Deeds
Notes
Sales
Photos
Map
Building Location Address
808 W MURRAY AVE
Building Description
RESMF-RES-MAS/FRAME
Card   of  1
Bldg Type RESIDENTIAL
Units 1
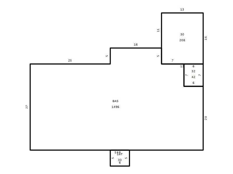
Living Area (SQFT) 1496
Number of Stories 1.00
Style RAN-RANCH
Foundation 04-P-FOOTING/CRWL-SP
Exterior 02-BRICK
Const Type
Heating 05-PACKAGE-HEAT/COOL
Air Cond
Plumbing Baths (Full):   2
Baths (Half):   0
Extra Fixtures:   0
Total Plumbing Fixtures:   6 
Bedrooms 3
Main Body (SQFT) 1496
Year Built 1960
Additions 3
Effective Year 1960
Remodeled 0
Interior Adj.
Other Features
Building Total & Improvement Details

Grade C 100%
Percentage Complete 100
Total Adjusted Replacement Cost New $274,617
Physical Depreciation (% Bad) 0%
Depreciated Value $151,039
Economic Depreciation (% Bad) 0%
Functional Depreciation (% Bad) 0%
Total Depreciated Value $151,039
Market Area Factor 1.00
Building Value $151,039
Misc Improvements Value
Total Improvement Value $151,039

Assessed Land Value $150,675
   
Assessed Total Value $301,714



Addition Summary 
StoryTypeCodeArea
1.00 Terrace/Raised Patio 16T 30
1.00 Carport 30 208
1.00 Storage Utility 32 42
 
Other Improvements 
 


Building Sketch
Photograph
Building Sketch Building Photo
(Click sketch for bigger image)




Copyright © 2022 Durham County, North Carolina.