Building Summary

Data last updated on: 4/2/2026     Ownership current as of: 3/30/2026     Tax Year: 2026
REID 167189

PIN # 0861-01-4849

Location Address Property Description
6 CAYMAN CT GROVE PRK-LINKSIDE MEADOW S @ BRIARCLIFFE/LT#398 PL:000141-000028
   
Property Owner Owner's Mailing Address
CPI/AMHERST SFR PROGRAM II OWNER LLC
3903 S CONGRESS AVE STE 40298
AUSTIN TX 78704
Parcel
Buildings
Misc Improvements
Land
Deeds
Notes
Sales
Photos
Map
Building Location Address
6 CAYMAN CT
Building Description
RESFR-RES-FRM-OR-EQ
Card   of  1
Bldg Type RESIDENTIAL
Units 1
Living Area (SQFT) 1053
Number of Stories 2.00
Style CAP-CAPE-COD
Foundation 03-CONTINOUS-SLAB
Exterior 08-VINYL/ALUMINUM
Const Type
Heating 05-PACKAGE-HEAT/COOL
Air Cond
Plumbing Baths (Full):   2
Baths (Half):   1
Extra Fixtures:   0
Total Plumbing Fixtures:   8 
Bedrooms 4
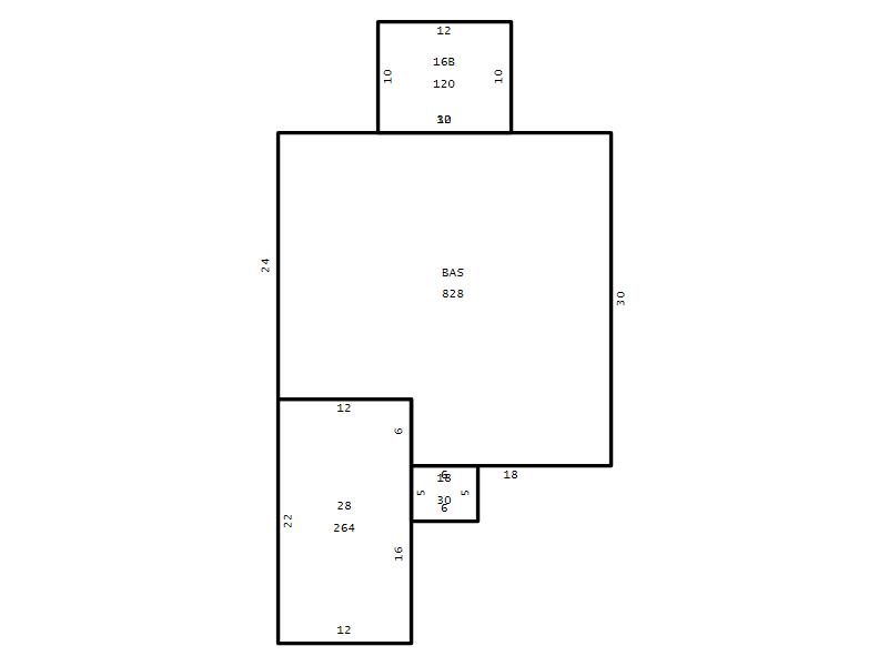
Main Body (SQFT) 828
Year Built 1999
Additions 5
Effective Year 1999
Remodeled 0
Interior Adj.
Other Features
Building Total & Improvement Details

Grade B- 115%
Percentage Complete 100
Total Adjusted Replacement Cost New $255,530
Physical Depreciation (% Bad) 0%
Depreciated Value $196,758
Economic Depreciation (% Bad) 0%
Functional Depreciation (% Bad) 0%
Total Depreciated Value $196,758
Market Area Factor 1.00
Building Value $196,758
Misc Improvements Value
Total Improvement Value $196,758

Assessed Land Value $93,000
   
Assessed Total Value $289,758



Addition Summary 
StoryTypeCodeArea
1.00 Concrete Slab 16B 120
1.00 Covered Porch 18 30
1.00 Garage 28 264
1.00 Res Frame 2Nd Flr FR02 207
1.00 Res Frm 2Nd Flr Over Garg FR02 18
 
Other Improvements 
 


Building Sketch
Photograph
Building Sketch Building Photo
(Click sketch for bigger image)




Copyright © 2022 Durham County, North Carolina.