Building Summary

Data last updated on: 4/2/2026     Ownership current as of: 3/30/2026     Tax Year: 2026
REID 106824

PIN # 0822-89-1991

Location Address Property Description
3021 GLENDALE AVE GLENDALE HEIGHTS EXT/SEC: 02/BLK:07/LT#03 PL:000034-000020
   
Property Owner Owner's Mailing Address
BARBOZA, IVAN ESCALANTE
5901 WILKINS DR LOT2A
DURHAM NC 27705
Parcel
Buildings
Misc Improvements
Land
Deeds
Notes
Sales
Photos
Map
Building Location Address
3021 GLENDALE AVE
Building Description
RESMF-RES-MAS/FRAME
Card   of  1
Bldg Type RESIDENTIAL
Units 1
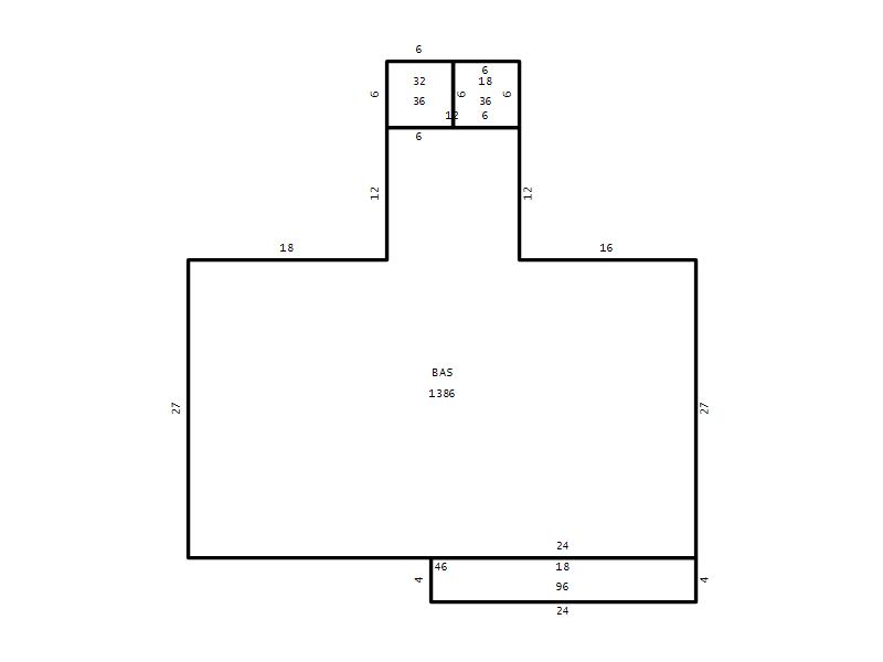
Living Area (SQFT) 1386
Number of Stories 1.00
Style RAN-RANCH
Foundation 04-P-FOOTING/CRWL-SP
Exterior 02-BRICK
Const Type
Heating 05-PACKAGE-HEAT/COOL
Air Cond
Plumbing Baths (Full):   1
Baths (Half):   1
Extra Fixtures:   0
Total Plumbing Fixtures:   5 
Bedrooms 3
Main Body (SQFT) 1386
Year Built 1959
Additions 3
Effective Year 1959
Remodeled 0
Interior Adj.
Other Features
Building Total & Improvement Details

Grade C 100%
Percentage Complete 100
Total Adjusted Replacement Cost New $253,932
Physical Depreciation (% Bad) 0%
Depreciated Value $139,663
Economic Depreciation (% Bad) 0%
Functional Depreciation (% Bad) 0%
Total Depreciated Value $139,663
Market Area Factor 1.00
Building Value $139,663
Misc Improvements Value $639
Total Improvement Value $140,302

Assessed Land Value $155,575
   
Assessed Total Value $295,877



Addition Summary 
StoryTypeCodeArea
1.00 Covered Porch 18 96
1.00 Storage Utility 32 36
1.00 Covered Porch 18 36
 
Other Improvements 
UnitsDescriptionItemCodeYear% BadValue
20x12 DIMENSIONS Prefab Metal Car Shed 1990 50 639
 


Building Sketch
Photograph
Building Sketch Building Photo
(Click sketch for bigger image)




Copyright © 2022 Durham County, North Carolina.