Building Summary

Data last updated on: 4/2/2026     Ownership current as of: 3/30/2026     Tax Year: 2026
REID 167243

PIN # 0851-76-7374

Location Address Property Description
4 N BERRYMEADOW LN MARBREY LANDING/PH:07/LT# 063 PL:000142-000200
   
Property Owner Owner's Mailing Address
WOLOSEN, YURI
4 N BERRYMEADOW LN
DURHAM NC 27703
Parcel
Buildings
Misc Improvements
Land
Deeds
Notes
Sales
Photos
Map
Building Location Address
4 N BERRYMEADOW LN
Building Description
RESFR-RES-FRM-OR-EQ
Card   of  1
Bldg Type RESIDENTIAL
Units 1
Living Area (SQFT) 2268
Number of Stories 2.00
Style CAP-CAPE-COD
Foundation 03-CONTINOUS-SLAB
Exterior 08-VINYL/ALUMINUM
Const Type
Heating 05-PACKAGE-HEAT/COOL
Air Cond
Plumbing Baths (Full):   2
Baths (Half):   1
Extra Fixtures:   0
Total Plumbing Fixtures:   8 
Bedrooms 3
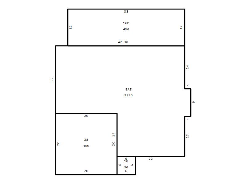
Main Body (SQFT) 1250
Year Built 2000
Additions 5
Effective Year 2000
Remodeled 0
Interior Adj.
Other Features
Building Total & Improvement Details

Grade B+10 130%
Percentage Complete 100
Total Adjusted Replacement Cost New $482,911
Physical Depreciation (% Bad) 0%
Depreciated Value $371,841
Economic Depreciation (% Bad) 0%
Functional Depreciation (% Bad) 0%
Total Depreciated Value $371,841
Market Area Factor 1.00
Building Value $371,841
Misc Improvements Value
Total Improvement Value $371,841

Assessed Land Value $57,195
   
Assessed Total Value $429,036



Addition Summary 
StoryTypeCodeArea
1.00 Patio 16P 456
1.00 Covered Porch 18 36
1.00 Garage 28 400
1.00 Res Frame 2Nd Flr FR02 818
1.00 Res Frm 2Nd Flr Over Garg FR02 200
 
Other Improvements 
 


Building Sketch
Photograph
Building Sketch Building Photo
(Click sketch for bigger image)




Copyright © 2022 Durham County, North Carolina.