Building Summary

Data last updated on: 4/2/2026     Ownership current as of: 3/30/2026     Tax Year: 2026
REID 167256

PIN # 0851-81-4632

Location Address Property Description
10 GWENDOLYN CIR GROVE PRK/LNKSDE OAK BRDG /LT#326 PL:000144-000149
   
Property Owner Owner's Mailing Address
DUCKWORTH, DAPHNE;CLEMENTS, RYAN FRANCIS
10 GWENDOLYN CIR
DURHAM NC 27703
Parcel
Buildings
Misc Improvements
Land
Deeds
Notes
Sales
Photos
Map
Building Location Address
10 GWENDOLYN CIR
Building Description
RESFR-RES-FRM-OR-EQ
Card   of  1
Bldg Type RESIDENTIAL
Units 1
Living Area (SQFT) 1992
Number of Stories 2.00
Style CON-CONVENTIONAL
Foundation 04-P-FOOTING/CRWL-SP
Exterior 01-WOOD-PANEL
Const Type
Heating 05-PACKAGE-HEAT/COOL
Air Cond
Plumbing Baths (Full):   2
Baths (Half):   1
Extra Fixtures:   0
Total Plumbing Fixtures:   8 
Bedrooms 4
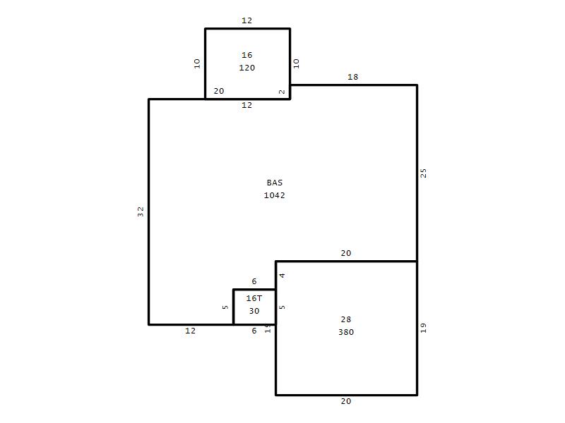
Main Body (SQFT) 1042
Year Built 2004
Additions 5
Effective Year 2004
Remodeled 0
Interior Adj.
Other Features
Building Total & Improvement Details

Grade B- 115%
Percentage Complete 100
Total Adjusted Replacement Cost New $398,446
Physical Depreciation (% Bad) 0%
Depreciated Value $318,757
Economic Depreciation (% Bad) 0%
Functional Depreciation (% Bad) 0%
Total Depreciated Value $318,757
Market Area Factor 1.00
Building Value $318,757
Misc Improvements Value
Total Improvement Value $318,757

Assessed Land Value $87,750
   
Assessed Total Value $406,507



Addition Summary 
StoryTypeCodeArea
1.00 Frame Deck 16 120
1.00 Terrace/Raised Patio 16T 30
1.00 Garage 28 380
1.00 Res Frm 2Nd Flr Over Garg FR02 334
1.00 Res Frame 2Nd Flr FR02 616
 
Other Improvements 
 


Building Sketch
Photograph
Building Sketch Building Photo
(Click sketch for bigger image)




Copyright © 2022 Durham County, North Carolina.