Building Summary

Data last updated on: 4/2/2026     Ownership current as of: 3/30/2026     Tax Year: 2026
REID 167272

PIN # 0851-91-1333

Location Address Property Description
223 STONEY DR GROVE PRK/LNKSDE OAK BRDG /LT#355 PL:000144-000150
   
Property Owner Owner's Mailing Address
2018-2 IH BORROWER LP
PO BOX 4900` 1717 MAIN ST STE 2000
SCOTTSDALE AZ 85261
Parcel
Buildings
Misc Improvements
Land
Deeds
Notes
Sales
Photos
Map
Building Location Address
223 STONEY DR
Building Description
RESFR-RES-FRM-OR-EQ
Card   of  1
Bldg Type RESIDENTIAL
Units 1
Living Area (SQFT) 2400
Number of Stories 2.00
Style CON-CONVENTIONAL
Foundation 03-CONTINOUS-SLAB
Exterior 01-WOOD-PANEL
Const Type
Heating 05-PACKAGE-HEAT/COOL
Air Cond
Plumbing Baths (Full):   2
Baths (Half):   1
Extra Fixtures:   0
Total Plumbing Fixtures:   8 
Bedrooms 5
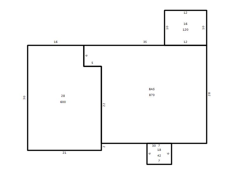
Main Body (SQFT) 870
Year Built 2001
Additions 5
Effective Year 2001
Remodeled 0
Interior Adj.
Other Features
Building Total & Improvement Details

Grade B- 115%
Percentage Complete 100
Total Adjusted Replacement Cost New $448,904
Physical Depreciation (% Bad) 0%
Depreciated Value $350,145
Economic Depreciation (% Bad) 0%
Functional Depreciation (% Bad) 0%
Total Depreciated Value $350,145
Market Area Factor 1.00
Building Value $350,145
Misc Improvements Value
Total Improvement Value $350,145

Assessed Land Value $97,500
   
Assessed Total Value $447,645



Addition Summary 
StoryTypeCodeArea
1.00 Frame Deck 16 120
1.00 Covered Porch 18 42
1.00 Garage 28 600
1.00 Res Frame 2Nd Flr FR02 972
1.00 Res Frm 2Nd Flr Over Garg FR02 558
 
Other Improvements 
 


Building Sketch
Photograph
Building Sketch Building Photo
(Click sketch for bigger image)




Copyright © 2022 Durham County, North Carolina.