Building Summary

Data last updated on: 4/2/2026     Ownership current as of: 3/30/2026     Tax Year: 2026
REID 167298

PIN # 0851-81-6585

Location Address Property Description
15 GWENDOLYN CIR GROVE PRK/LNKSDE OAK BRDG /LT#342 FUTURE LOTS# 342 PL:000157-000207
   
Property Owner Owner's Mailing Address
2018-4 IH BORROWER LP
PO BOX 4900
SCOTTSDALE AZ 85261
Parcel
Buildings
Misc Improvements
Land
Deeds
Notes
Sales
Photos
Map
Building Location Address
15 GWENDOLYN CIR
Building Description
RESFR-RES-FRM-OR-EQ
Card   of  1
Bldg Type RESIDENTIAL
Units 1
Living Area (SQFT) 1869
Number of Stories 2.00
Style CON-CONVENTIONAL
Foundation 04-P-FOOTING/CRWL-SP
Exterior 08-VINYL/ALUMINUM
Const Type
Heating 05-PACKAGE-HEAT/COOL
Air Cond
Plumbing Baths (Full):   2
Baths (Half):   1
Extra Fixtures:   0
Total Plumbing Fixtures:   8 
Bedrooms 3
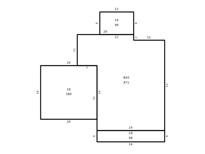
Main Body (SQFT) 871
Year Built 2003
Additions 5
Effective Year 2003
Remodeled 0
Interior Adj.
Other Features
Building Total & Improvement Details

Grade B- 115%
Percentage Complete 100
Total Adjusted Replacement Cost New $385,896
Physical Depreciation (% Bad) 0%
Depreciated Value $308,717
Economic Depreciation (% Bad) 0%
Functional Depreciation (% Bad) 0%
Total Depreciated Value $308,717
Market Area Factor 1.00
Building Value $308,717
Misc Improvements Value
Total Improvement Value $308,717

Assessed Land Value $90,000
   
Assessed Total Value $398,717



Addition Summary 
StoryTypeCodeArea
1.00 Frame Deck 16 96
1.00 Covered Porch 18 96
1.00 Garage 28 380
1.00 Res Frame 2Nd Flr FR02 808
1.00 Res Frm 2Nd Flr Over Garg FR02 190
 
Other Improvements 
 


Building Sketch
Photograph
Building Sketch Building Photo
(Click sketch for bigger image)




Copyright © 2022 Durham County, North Carolina.