Building Summary

Data last updated on: 4/2/2026     Ownership current as of: 3/30/2026     Tax Year: 2026
REID 167310

PIN # 0851-76-7772

Location Address Property Description
14 N BERRYMEADOW LN MARBREY LANDING/PH:08/LT# 58 PL:000149-000169
   
Property Owner Owner's Mailing Address
IH6 PROPERTY NORTH CAROLINA LP
PO BOX 4900
SCOTTSDALE AZ 85261
Parcel
Buildings
Misc Improvements
Land
Deeds
Notes
Sales
Photos
Map
Building Location Address
14 N BERRYMEADOW LN
Building Description
RESFR-RES-FRM-OR-EQ
Card   of  1
Bldg Type RESIDENTIAL
Units 1
Living Area (SQFT) 1696
Number of Stories 2.00
Style CON-CONVENTIONAL
Foundation 03-CONTINOUS-SLAB
Exterior 08-VINYL/ALUMINUM
Const Type
Heating 05-PACKAGE-HEAT/COOL
Air Cond
Plumbing Baths (Full):   2
Baths (Half):   1
Extra Fixtures:   0
Total Plumbing Fixtures:   8 
Bedrooms 3
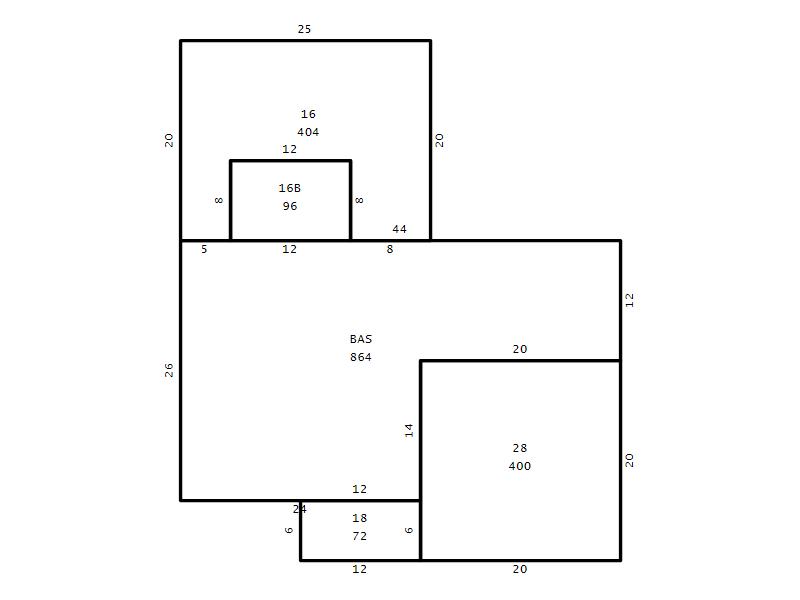
Main Body (SQFT) 864
Year Built 2001
Additions 6
Effective Year 2001
Remodeled 0
Interior Adj.
Other Features
Building Total & Improvement Details

Grade B+10 130%
Percentage Complete 100
Total Adjusted Replacement Cost New $409,503
Physical Depreciation (% Bad) 0%
Depreciated Value $319,412
Economic Depreciation (% Bad) 0%
Functional Depreciation (% Bad) 0%
Total Depreciated Value $319,412
Market Area Factor 1.00
Building Value $319,412
Misc Improvements Value
Total Improvement Value $319,412

Assessed Land Value $57,195
   
Assessed Total Value $376,607



Addition Summary 
StoryTypeCodeArea
1.00 Frame Deck 16 404
1.00 Concrete Slab 16B 96
1.00 Covered Porch 18 72
1.00 Garage 28 400
1.00 Res Frame 2Nd Flr FR02 552
1.00 Res Frm 2Nd Flr Over Garg FR02 280
 
Other Improvements 
UnitsDescriptionItemCodeYear% BadValue
8x10 DIMENSIONS Shed Personal Property 2005 75
 


Building Sketch
Photograph
Building Sketch Building Photo
(Click sketch for bigger image)




Copyright © 2022 Durham County, North Carolina.