Building Summary

Data last updated on: 3/13/2026     Ownership current as of: 3/9/2026     Tax Year: 2026
REID 167379

PIN # 0851-85-8960

Location Address Property Description
1006 STALLINGS RD PROP-CAHNDLER M W PL:000000-000000
   
Property Owner Owner's Mailing Address
TING, JONATHAN JINGHSIANG
1006 STALLINGS RD
DURHAM NC 27703

Value subject to change, property assessment under review

Parcel
Buildings
Misc Improvements
Land
Deeds
Notes
Sales
Photos
Map
Building Location Address
1006 STALLINGS RD
Building Description
RESMS-RES-MS-OR-EQ
Card   of  1
Bldg Type RESIDENTIAL
Units 1
Living Area (SQFT) 1359
Number of Stories 2.00
Style CAP-CAPE-COD
Foundation 06-BASEMENT
Exterior 02-BRICK
Const Type
Heating 02-RAD/ELEC/BB/WATR
Air Cond
Plumbing Baths (Full):   1
Baths (Half):   0
Extra Fixtures:   0
Total Plumbing Fixtures:   3 
Bedrooms 2
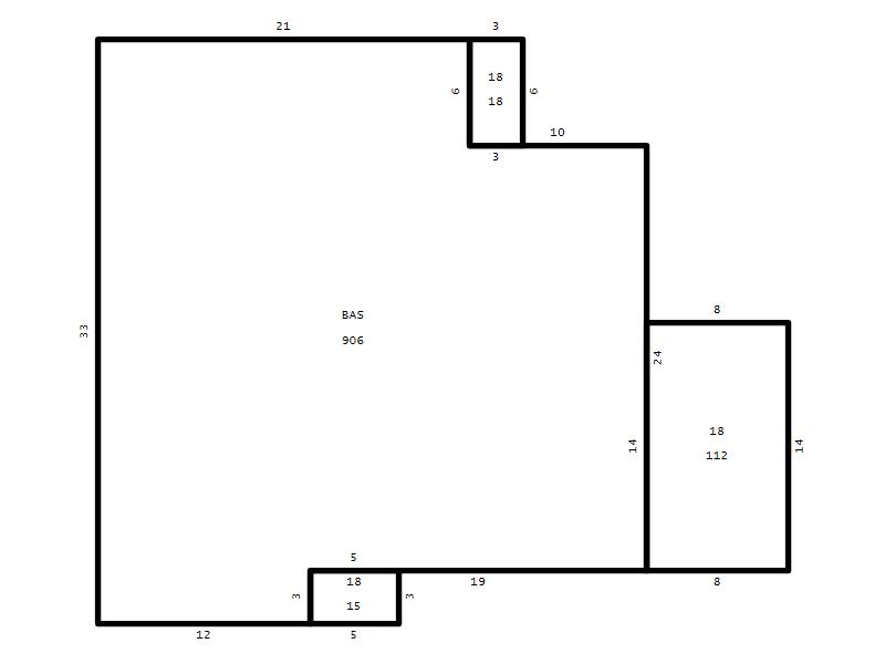
Main Body (SQFT) 906
Year Built 1946
Additions 6
Effective Year 1946
Remodeled 0
Interior Adj.
Other Features
Building Total & Improvement Details

Grade C+ 110%
Percentage Complete 100
Total Adjusted Replacement Cost New
Physical Depreciation (% Bad) 0%
Depreciated Value
Economic Depreciation (% Bad) 0%
Functional Depreciation (% Bad) 0%
Total Depreciated Value
Market Area Factor 1.00
Building Value
Misc Improvements Value
Total Improvement Value

Assessed Land Value
   
Assessed Total Value



Addition Summary 
StoryTypeCodeArea
1.00 Covered Porch 18 112
1.00 Covered Porch 18 18
1.00 Covered Porch 18 15
1.00 Res Mas 2Nd Flr MS02 453
1.00 Basement Garage BG 1
1.00 Unfinished Basement 10 906
 
Other Improvements 
 


Building Sketch
Photograph
Building Sketch Building Photo
(Click sketch for bigger image)




Copyright © 2022 Durham County, North Carolina.