Building Summary

Data last updated on: 4/2/2026     Ownership current as of: 3/30/2026     Tax Year: 2026
REID 167486

PIN # 0851-77-3665

Location Address Property Description
8 LOST TREE CT ADLETT PARK/LT#23 PL:000154-000079
   
Property Owner Owner's Mailing Address
CASSIDY, PATRICK;BILLINGSLEY, BETTY L
8 LOST TREE CT
DURHAM NC 27703
Parcel
Buildings
Misc Improvements
Land
Deeds
Notes
Sales
Photos
Map
Building Location Address
8 LOST TREE CT
Building Description
RESFR-RES-FRM-OR-EQ
Card   of  1
Bldg Type RESIDENTIAL
Units 1
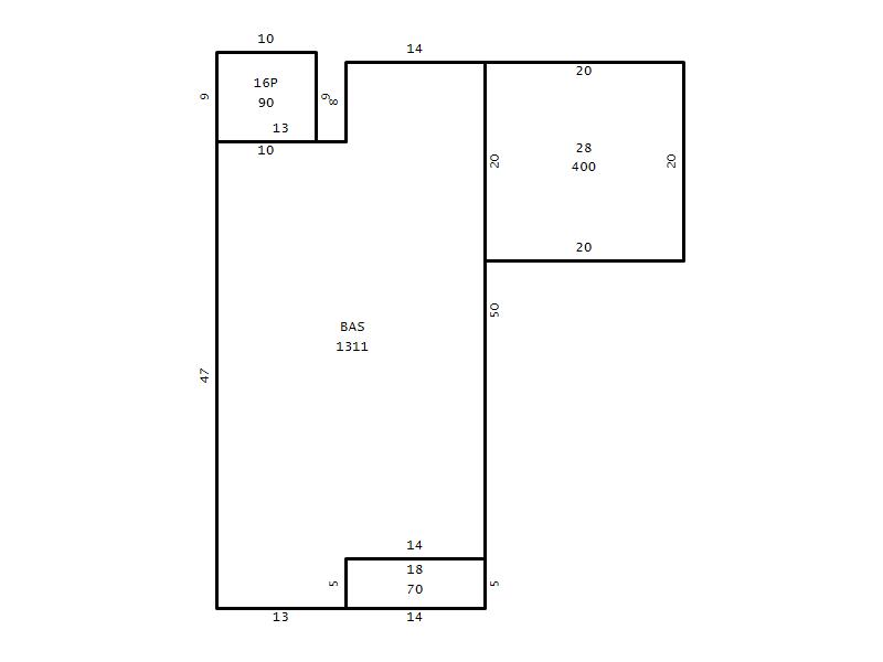
Living Area (SQFT) 1311
Number of Stories 1.00
Style RAN-RANCH
Foundation 04-P-FOOTING/CRWL-SP
Exterior 08-VINYL/ALUMINUM
Const Type
Heating 05-PACKAGE-HEAT/COOL
Air Cond
Plumbing Baths (Full):   2
Baths (Half):   0
Extra Fixtures:   0
Total Plumbing Fixtures:   6 
Bedrooms 3
Main Body (SQFT) 1311
Year Built 2002
Additions 3
Effective Year 2002
Remodeled 0
Interior Adj.
Other Features
Building Total & Improvement Details

Grade B+10 130%
Percentage Complete 100
Total Adjusted Replacement Cost New $338,160
Physical Depreciation (% Bad) 0%
Depreciated Value $267,146
Economic Depreciation (% Bad) 0%
Functional Depreciation (% Bad) 0%
Total Depreciated Value $267,146
Market Area Factor 1.00
Building Value $267,146
Misc Improvements Value
Total Improvement Value $267,146

Assessed Land Value $61,845
   
Assessed Total Value $328,991



Addition Summary 
StoryTypeCodeArea
1.00 Patio 16P 90
1.00 Covered Porch 18 70
1.00 Garage 28 400
 
Other Improvements 
 


Building Sketch
Photograph
Building Sketch Building Photo
(Click sketch for bigger image)




Copyright © 2022 Durham County, North Carolina.