Building Summary

Data last updated on: 4/2/2026     Ownership current as of: 3/30/2026     Tax Year: 2026
REID 167543

PIN # 0851-77-6617

Location Address Property Description
3 LOST TREE CT ADLETT PARK/LT#28 PL:000154-000079
   
Property Owner Owner's Mailing Address
2024-1 IH BORROWER LP
5420 LBJ FREEWAY STE 600
DALLAS TX 75240
Parcel
Buildings
Misc Improvements
Land
Deeds
Notes
Sales
Photos
Map
Building Location Address
3 LOST TREE CT
Building Description
RESFR-RES-FRM-OR-EQ
Card   of  1
Bldg Type RESIDENTIAL
Units 1
Living Area (SQFT) 2460
Number of Stories 2.00
Style CON-CONVENTIONAL
Foundation 04-P-FOOTING/CRWL-SP
Exterior 08-VINYL/ALUMINUM
Const Type
Heating 05-PACKAGE-HEAT/COOL
Air Cond
Plumbing Baths (Full):   2
Baths (Half):   1
Extra Fixtures:   0
Total Plumbing Fixtures:   8 
Bedrooms 3
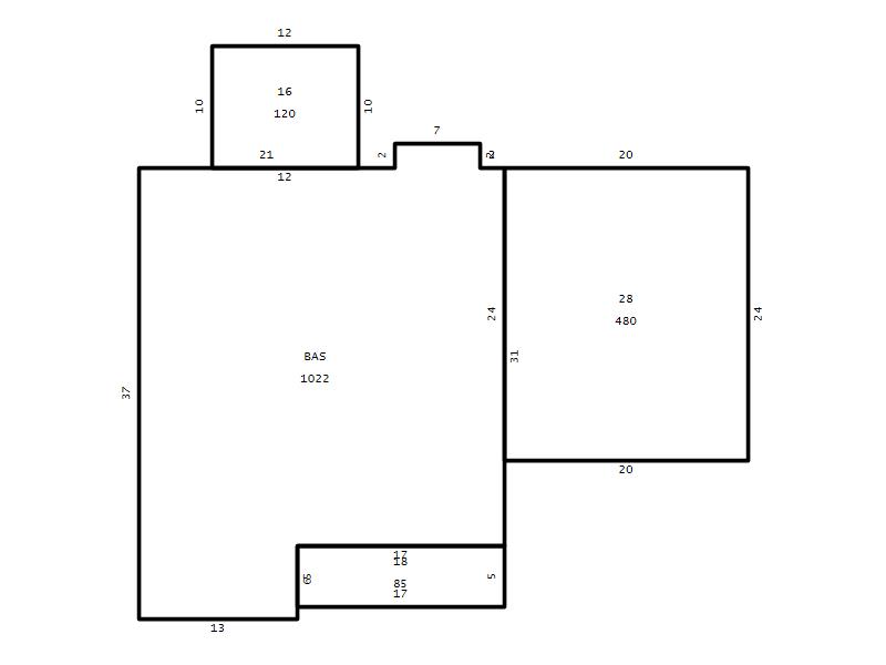
Main Body (SQFT) 1022
Year Built 2003
Additions 5
Effective Year 2003
Remodeled 0
Interior Adj.
Other Features
Building Total & Improvement Details

Grade B+10 130%
Percentage Complete 100
Total Adjusted Replacement Cost New $523,555
Physical Depreciation (% Bad) 0%
Depreciated Value $418,844
Economic Depreciation (% Bad) 0%
Functional Depreciation (% Bad) 0%
Total Depreciated Value $418,844
Market Area Factor 1.00
Building Value $418,844
Misc Improvements Value
Total Improvement Value $418,844

Assessed Land Value $61,380
   
Assessed Total Value $480,224



Addition Summary 
StoryTypeCodeArea
1.00 Frame Deck 16 120
1.00 Covered Porch 18 85
1.00 Garage 28 480
1.00 Res Frame 2Nd Flr FR02 958
1.00 Res Frm 2Nd Flr Over Garg FR02 480
 
Other Improvements 
 


Building Sketch
Photograph
Building Sketch Building Photo
(Click sketch for bigger image)




Copyright © 2022 Durham County, North Carolina.