Building Summary

Data last updated on: 3/13/2026     Ownership current as of: 3/9/2026     Tax Year: 2026
REID 167609

PIN # 0851-79-5042

Location Address Property Description
1311 N MINERAL SPRINGS RD PROP-FLETCHER J D/LT#06 S M PT PL:000034-000062
   
Property Owner Owner's Mailing Address
TF GROUP LLC
3310 NORTH ROXBORO ST
DURHAM NC 27704
Parcel
Buildings
Misc Improvements
Land
Deeds
Notes
Sales
Photos
Map
Building Location Address
1311 N MINERAL SPRINGS RD
Building Description
RESFR-RES-FRM-OR-EQ
Card   of  1
Bldg Type RESIDENTIAL
Units 1
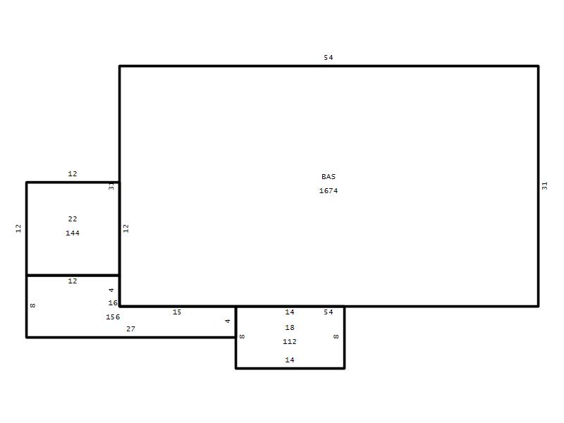
Living Area (SQFT) 1674
Number of Stories 1.00
Style RAN-RANCH
Foundation 04-P-FOOTING/CRWL-SP
Exterior 08-VINYL/ALUMINUM
Const Type
Heating 03-FORCED-HOT-AIR
Air Cond
Plumbing Baths (Full):   1
Baths (Half):   0
Extra Fixtures:   0
Total Plumbing Fixtures:   3 
Bedrooms 2
Main Body (SQFT) 1674
Year Built 1930
Additions 3
Effective Year 1930
Remodeled 0
Interior Adj.
Other Features
Building Total & Improvement Details

Grade C- 95%
Percentage Complete 100
Total Adjusted Replacement Cost New $267,251
Physical Depreciation (% Bad) 0%
Depreciated Value $173,713
Economic Depreciation (% Bad) 0%
Functional Depreciation (% Bad) 0%
Total Depreciated Value $173,713
Market Area Factor 1.00
Building Value $173,713
Misc Improvements Value $22,707
Total Improvement Value $196,420

Assessed Land Value $98,125
   
Assessed Total Value $294,545



Addition Summary 
StoryTypeCodeArea
1.00 Covered Porch 18 112
1.00 Enclosed Porch 22 144
1.00 Frame Deck 16 156
 
Other Improvements 
UnitsDescriptionItemCodeYear% BadValue
16x32 DIMENSIONS Quonset Building 1985 60 3676
8x14 DIMENSIONS Lean To 2005 75 85
35x12 DIMENSIONS Shop 2003 40 8335
28x16 DIMENSIONS Shop 2002 40 8891
12x40 DIMENSIONS Shed Personal Property 2000 75
28x14 DIMENSIONS Storage Building 2001 75 1720
 


Building Sketch
Photograph
Building Sketch Building Photo
(Click sketch for bigger image)




Copyright © 2022 Durham County, North Carolina.