Building Summary

Data last updated on: 4/2/2026     Ownership current as of: 3/30/2026     Tax Year: 2026
REID 167693

PIN # 0852-82-4279

Location Address Property Description
506 COVE HOLLOW DR RIDGEWD/RIDGEFLD/PH:05B/L T#329 PL:000157-000011
   
Property Owner Owner's Mailing Address
BAF ASSETS 2 LLC
3903 S CONGRESS AVE STE 40298
AUSTIN TX 78704
Parcel
Buildings
Misc Improvements
Land
Deeds
Notes
Sales
Photos
Map
Building Location Address
506 COVE HOLLOW DR
Building Description
RESFR-RES-FRM-OR-EQ
Card   of  1
Bldg Type RESIDENTIAL
Units 1
Living Area (SQFT) 1380
Number of Stories 2.00
Style CON-CONVENTIONAL
Foundation 03-CONTINOUS-SLAB
Exterior 08-VINYL/ALUMINUM
Const Type
Heating 05-PACKAGE-HEAT/COOL
Air Cond
Plumbing Baths (Full):   2
Baths (Half):   0
Extra Fixtures:   0
Total Plumbing Fixtures:   6 
Bedrooms 3
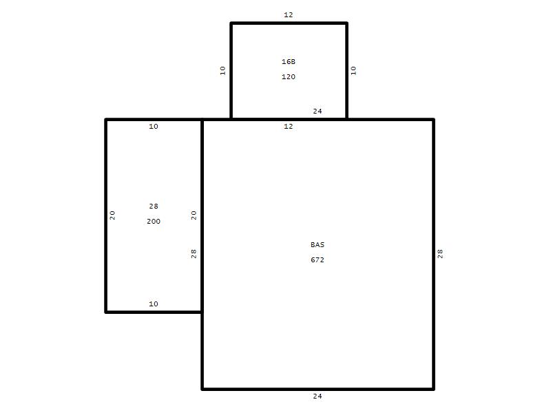
Main Body (SQFT) 672
Year Built 2004
Additions 3
Effective Year 2004
Remodeled 0
Interior Adj.
Other Features
Building Total & Improvement Details

Grade C+ 110%
Percentage Complete 100
Total Adjusted Replacement Cost New $276,928
Physical Depreciation (% Bad) 0%
Depreciated Value $221,542
Economic Depreciation (% Bad) 0%
Functional Depreciation (% Bad) 0%
Total Depreciated Value $221,542
Market Area Factor 1.00
Building Value $221,542
Misc Improvements Value
Total Improvement Value $221,542

Assessed Land Value $70,625
   
Assessed Total Value $292,167



Addition Summary 
StoryTypeCodeArea
1.00 Concrete Slab 16B 120
1.00 Garage 28 200
1.00 Res Frame 2Nd Flr FR02 708
 
Other Improvements 
 


Building Sketch
Photograph
Building Sketch Building Photo
(Click sketch for bigger image)




Copyright © 2022 Durham County, North Carolina.