Building Summary

Data last updated on: 3/13/2026     Ownership current as of: 3/9/2026     Tax Year: 2026
REID 167731

PIN # 0852-72-9651

Location Address Property Description
518 CLEARFIELD DR RIDGEWD/RIDGEFLD/PH:05A/L T#395 PL:000157-000017
   
Property Owner Owner's Mailing Address
NORTH, CHELSEA NICOLE;NGUYEN, DANH THANH
518 CLEARFIELD DR
DURHAM NC 27703
Parcel
Buildings
Misc Improvements
Land
Deeds
Notes
Sales
Photos
Map
Building Location Address
518 CLEARFIELD DR
Building Description
RESFR-RES-FRM-OR-EQ
Card   of  1
Bldg Type RESIDENTIAL
Units 1
Living Area (SQFT) 1748
Number of Stories 2.00
Style CON-CONVENTIONAL
Foundation 03-CONTINOUS-SLAB
Exterior 08-VINYL/ALUMINUM
Const Type
Heating 05-PACKAGE-HEAT/COOL
Air Cond
Plumbing Baths (Full):   2
Baths (Half):   1
Extra Fixtures:   0
Total Plumbing Fixtures:   8 
Bedrooms 3
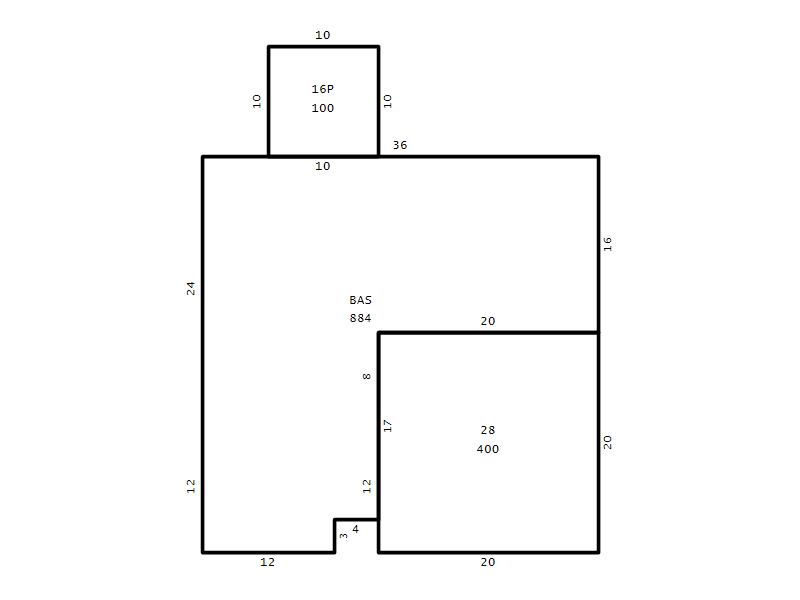
Main Body (SQFT) 884
Year Built 2003
Additions 4
Effective Year 2003
Remodeled 0
Interior Adj.
Other Features
Building Total & Improvement Details

Grade C+ 110%
Percentage Complete 100
Total Adjusted Replacement Cost New $338,434
Physical Depreciation (% Bad) 0%
Depreciated Value $270,747
Economic Depreciation (% Bad) 0%
Functional Depreciation (% Bad) 0%
Total Depreciated Value $270,747
Market Area Factor 1.00
Building Value $270,747
Misc Improvements Value
Total Improvement Value $270,747

Assessed Land Value $70,000
   
Assessed Total Value $340,747



Addition Summary 
StoryTypeCodeArea
1.00 Patio 16P 100
1.00 Garage 28 400
1.00 Res Frame 2Nd Flr FR02 704
1.00 Res Frm 2Nd Flr Over Garg FR02 160
 
Other Improvements 
 


Building Sketch
Photograph
Building Sketch Building Photo
(Click sketch for bigger image)




Copyright © 2022 Durham County, North Carolina.