Building Summary

Data last updated on: 4/2/2026     Ownership current as of: 3/30/2026     Tax Year: 2026
REID 167798

PIN # 0851-68-0195

Location Address Property Description
209 CLOVERDALE DR RIDGEWD/RIDGEFLD/PH:01/S- B/LT#052 PL:000142-000071
   
Property Owner Owner's Mailing Address
IH6 PROPERTY NORTH CAROLINA LP
PO BOX 4900
SCOTTSDALE AZ 85261
Parcel
Buildings
Misc Improvements
Land
Deeds
Notes
Sales
Photos
Map
Building Location Address
209 CLOVERDALE DR
Building Description
RESFR-RES-FRM-OR-EQ
Card   of  1
Bldg Type RESIDENTIAL
Units 1
Living Area (SQFT) 1848
Number of Stories 2.00
Style CON-CONVENTIONAL
Foundation 03-CONTINOUS-SLAB
Exterior 08-VINYL/ALUMINUM
Const Type
Heating 05-PACKAGE-HEAT/COOL
Air Cond
Plumbing Baths (Full):   2
Baths (Half):   1
Extra Fixtures:   0
Total Plumbing Fixtures:   8 
Bedrooms 3
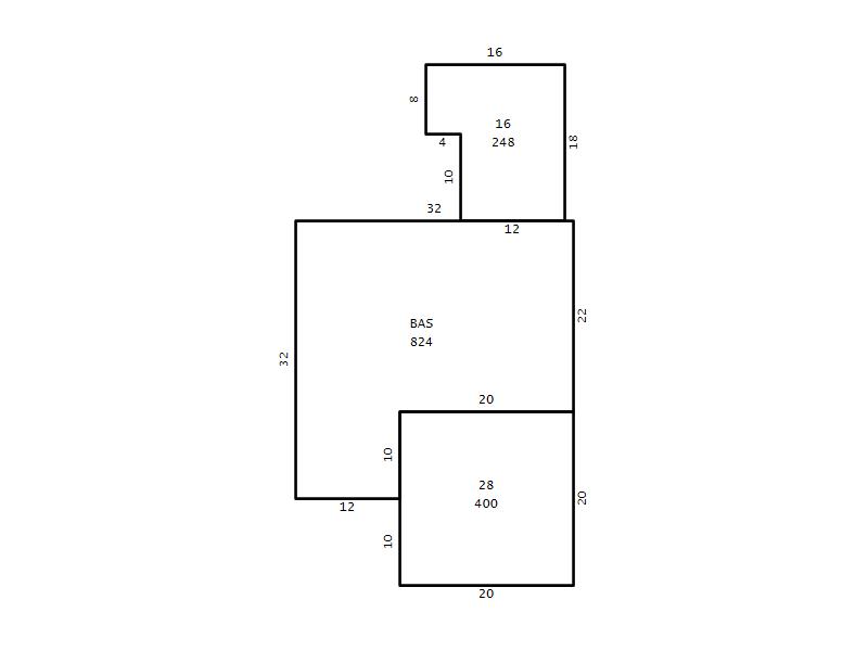
Main Body (SQFT) 824
Year Built 1999
Additions 4
Effective Year 1999
Remodeled 0
Interior Adj.
Other Features
Building Total & Improvement Details

Grade C+ 110%
Percentage Complete 100
Total Adjusted Replacement Cost New $356,966
Physical Depreciation (% Bad) 0%
Depreciated Value $274,864
Economic Depreciation (% Bad) 0%
Functional Depreciation (% Bad) 0%
Total Depreciated Value $274,864
Market Area Factor 1.00
Building Value $274,864
Misc Improvements Value $3,516
Total Improvement Value $278,380

Assessed Land Value $75,000
   
Assessed Total Value $353,380



Addition Summary 
StoryTypeCodeArea
1.00 Frame Deck 16 248
1.00 Garage 28 400
1.00 Res Frame 2Nd Flr FR02 824
1.00 Res Frm 2Nd Flr Over Garg FR02 200
 
Other Improvements 
UnitsDescriptionItemCodeYear% BadValue
12x12 DIMENSIONS Shop 2000 45 3087
3x12 DIMENSIONS Deck 2000 45 429
 


Building Sketch
Photograph
Building Sketch Building Photo
(Click sketch for bigger image)




Copyright © 2022 Durham County, North Carolina.