Building Summary

Data last updated on: 3/13/2026     Ownership current as of: 3/9/2026     Tax Year: 2026
REID 167799

PIN # 0851-68-1148

Location Address Property Description
211 CLOVERDALE DR RIDGEWD/RIDGEFLD/PH:01/S- B/LT#053 PL:000142-000071
   
Property Owner Owner's Mailing Address
SNYDER, DUSTIN
211 CLOVERDALE DR
DURHAM NC 27703
Parcel
Buildings
Misc Improvements
Land
Deeds
Notes
Sales
Photos
Map
Building Location Address
211 CLOVERDALE DR
Building Description
RESFR-RES-FRM-OR-EQ
Card   of  1
Bldg Type RESIDENTIAL
Units 1
Living Area (SQFT) 1540
Number of Stories 2.00
Style CON-CONVENTIONAL
Foundation 03-CONTINOUS-SLAB
Exterior 08-VINYL/ALUMINUM
Const Type
Heating 05-PACKAGE-HEAT/COOL
Air Cond
Plumbing Baths (Full):   2
Baths (Half):   1
Extra Fixtures:   0
Total Plumbing Fixtures:   8 
Bedrooms 3
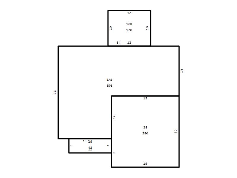
Main Body (SQFT) 656
Year Built 1999
Additions 5
Effective Year 1999
Remodeled 0
Interior Adj.
Other Features
Building Total & Improvement Details

Grade C+ 110%
Percentage Complete 100
Total Adjusted Replacement Cost New $310,899
Physical Depreciation (% Bad) 0%
Depreciated Value $239,392
Economic Depreciation (% Bad) 0%
Functional Depreciation (% Bad) 0%
Total Depreciated Value $239,392
Market Area Factor 1.00
Building Value $239,392
Misc Improvements Value
Total Improvement Value $239,392

Assessed Land Value $73,750
   
Assessed Total Value $313,142



Addition Summary 
StoryTypeCodeArea
1.00 Concrete Slab 16B 120
1.00 Covered Porch 18 48
1.00 Garage 28 380
1.00 Res Frame 2Nd Flr FR02 656
1.00 Res Frm 2Nd Flr Over Garg FR02 228
 
Other Improvements 
 


Building Sketch
Photograph
Building Sketch Building Photo
(Click sketch for bigger image)




Copyright © 2022 Durham County, North Carolina.