Building Summary

Data last updated on: 3/13/2026     Ownership current as of: 3/9/2026     Tax Year: 2026
REID 167825

PIN # 0851-68-3100

Location Address Property Description
214 CLOVERDALE DR RIDGEWD/RIDGEFLD/PH:01/S- B/LT#072 PL:000142-000071
   
Property Owner Owner's Mailing Address
LUCK, QUIERRA
214 CLOVERDALE DR
DURHAM NC 27703
Parcel
Buildings
Misc Improvements
Land
Deeds
Notes
Sales
Photos
Map
Building Location Address
214 CLOVERDALE DR
Building Description
RESFR-RES-FRM-OR-EQ
Card   of  1
Bldg Type RESIDENTIAL
Units 1
Living Area (SQFT) 1254
Number of Stories 1.00
Style RAN-RANCH
Foundation 03-CONTINOUS-SLAB
Exterior 08-VINYL/ALUMINUM
Const Type
Heating 05-PACKAGE-HEAT/COOL
Air Cond
Plumbing Baths (Full):   2
Baths (Half):   0
Extra Fixtures:   0
Total Plumbing Fixtures:   6 
Bedrooms 3
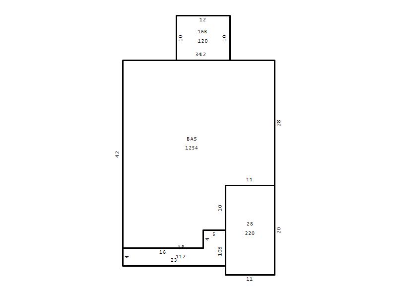
Main Body (SQFT) 1254
Year Built 1999
Additions 3
Effective Year 1999
Remodeled 0
Interior Adj.
Other Features
Building Total & Improvement Details

Grade C+ 110%
Percentage Complete 100
Total Adjusted Replacement Cost New $269,251
Physical Depreciation (% Bad) 0%
Depreciated Value $207,323
Economic Depreciation (% Bad) 0%
Functional Depreciation (% Bad) 0%
Total Depreciated Value $207,323
Market Area Factor 1.00
Building Value $207,323
Misc Improvements Value
Total Improvement Value $207,323

Assessed Land Value $75,000
   
Assessed Total Value $282,323



Addition Summary 
StoryTypeCodeArea
1.00 Concrete Slab 16B 120
1.00 Covered Porch 18 112
1.00 Garage 28 220
 
Other Improvements 
 


Building Sketch
Photograph
Building Sketch Building Photo
(Click sketch for bigger image)




Copyright © 2022 Durham County, North Carolina.