Building Summary

Data last updated on: 3/31/2026     Ownership current as of: 3/26/2026     Tax Year: 2026
REID 167848

PIN # 0851-68-5679

Location Address Property Description
9 TUMLIN CT RIDGEWD/RIDGEFLD/PH:01/S- C/LT#146 PL:000142-000072
   
Property Owner Owner's Mailing Address
STAR BORROWER SFR6 LP
16220 N SCOTTSDALE RD STE 450
SCOTTSDALE AZ 85254
Parcel
Buildings
Misc Improvements
Land
Deeds
Notes
Sales
Photos
Map
Building Location Address
9 TUMLIN CT
Building Description
RESFR-RES-FRM-OR-EQ
Card   of  1
Bldg Type RESIDENTIAL
Units 1
Living Area (SQFT) 1548
Number of Stories 1.00
Style BTS-BI/TRI/SPLT-LEVL
Foundation 06-BASEMENT
Exterior 08-VINYL/ALUMINUM
Const Type
Heating 06-HEAT-PUMP
Air Cond
Plumbing Baths (Full):   3
Baths (Half):   0
Extra Fixtures:   0
Total Plumbing Fixtures:   9 
Bedrooms 4
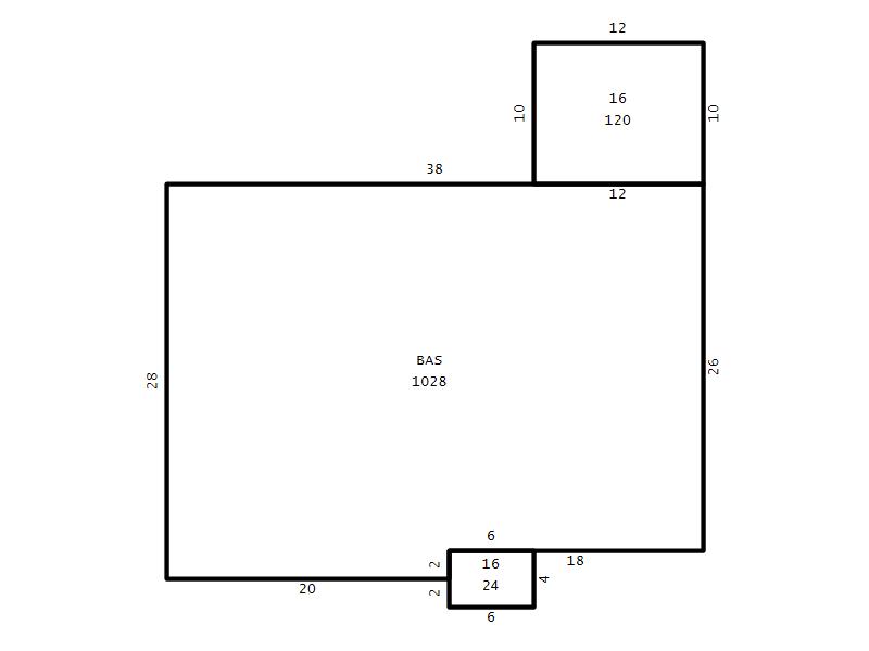
Main Body (SQFT) 1028
Year Built 1999
Additions 3
Effective Year 1999
Remodeled 0
Interior Adj.
Other Features
Building Total & Improvement Details

Grade C+ 110%
Percentage Complete 100
Total Adjusted Replacement Cost New $275,160
Physical Depreciation (% Bad) 0%
Depreciated Value $211,873
Economic Depreciation (% Bad) 0%
Functional Depreciation (% Bad) 0%
Total Depreciated Value $211,873
Market Area Factor 1.00
Building Value $211,873
Misc Improvements Value
Total Improvement Value $211,873

Assessed Land Value $86,250
   
Assessed Total Value $298,123



Addition Summary 
StoryTypeCodeArea
1.00 Frame Deck 16 120
1.00 Frame Deck 16 24
1.00 Finished Basement 14 520
 
Other Improvements 
 


Building Sketch
Photograph
Building Sketch Building Photo
(Click sketch for bigger image)




Copyright © 2022 Durham County, North Carolina.