Building Summary

Data last updated on: 3/31/2026     Ownership current as of: 3/26/2026     Tax Year: 2026
REID 167914

PIN # 0851-59-7354

Location Address Property Description
216 PEBBLESTONE DR RIDGEWD/RIDGEFLD/PH:03/LT #023 PL:000144-000071
   
Property Owner Owner's Mailing Address
2024-1 IH BORROWER LP
5420 LBJ FREEWAY STE 600
DALLAS TX 75240
Parcel
Buildings
Misc Improvements
Land
Deeds
Notes
Sales
Photos
Map
Building Location Address
216 PEBBLESTONE DR
Building Description
RESFR-RES-FRM-OR-EQ
Card   of  1
Bldg Type RESIDENTIAL
Units 1
Living Area (SQFT) 2288
Number of Stories 2.00
Style CON-CONVENTIONAL
Foundation 03-CONTINOUS-SLAB
Exterior 08-VINYL/ALUMINUM
Const Type
Heating 05-PACKAGE-HEAT/COOL
Air Cond
Plumbing Baths (Full):   2
Baths (Half):   1
Extra Fixtures:   0
Total Plumbing Fixtures:   8 
Bedrooms 4
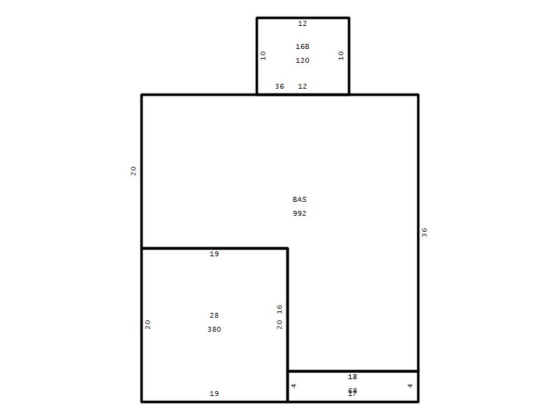
Main Body (SQFT) 992
Year Built 2000
Additions 5
Effective Year 2000
Remodeled 0
Interior Adj.
Other Features
Building Total & Improvement Details

Grade C+ 110%
Percentage Complete 100
Total Adjusted Replacement Cost New $403,581
Physical Depreciation (% Bad) 0%
Depreciated Value $310,757
Economic Depreciation (% Bad) 0%
Functional Depreciation (% Bad) 0%
Total Depreciated Value $310,757
Market Area Factor 1.00
Building Value $310,757
Misc Improvements Value
Total Improvement Value $310,757

Assessed Land Value $76,250
   
Assessed Total Value $387,007



Addition Summary 
StoryTypeCodeArea
1.00 Concrete Slab 16B 120
1.00 Covered Porch 18 68
1.00 Garage 28 380
1.00 Res Frame 2Nd Flr FR02 992
1.00 Res Frm 2Nd Flr Over Garg FR02 304
 
Other Improvements 
 


Building Sketch
Photograph
Building Sketch Building Photo
(Click sketch for bigger image)




Copyright © 2022 Durham County, North Carolina.