Building Summary

Data last updated on: 4/2/2026     Ownership current as of: 3/30/2026     Tax Year: 2026
REID 168280

PIN # 0841-99-2173

Location Address Property Description
16 MEADOWCREST DR MEADOWCREST/PH:01/LT#08 PL:000127-000075
   
Property Owner Owner's Mailing Address
BILLMAN, JEFFREY
16 MEADOWCREST DR
DURHAM NC 27703
Parcel
Buildings
Misc Improvements
Land
Deeds
Notes
Sales
Photos
Map
Building Location Address
16 MEADOWCREST DR
Building Description
RESFR-RES-FRM-OR-EQ
Card   of  1
Bldg Type RESIDENTIAL
Units 1
Living Area (SQFT) 1728
Number of Stories 2.00
Style COL-COLONIAL
Foundation 03-CONTINOUS-SLAB
Exterior 01-WOOD-PANEL
Const Type
Heating 05-PACKAGE-HEAT/COOL
Air Cond
Plumbing Baths (Full):   2
Baths (Half):   1
Extra Fixtures:   0
Total Plumbing Fixtures:   8 
Bedrooms 3
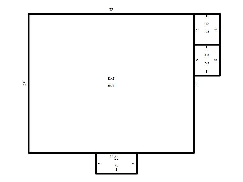
Main Body (SQFT) 864
Year Built 1993
Additions 4
Effective Year 1993
Remodeled 0
Interior Adj.
Other Features
Building Total & Improvement Details

Grade C+5 105%
Percentage Complete 100
Total Adjusted Replacement Cost New $295,030
Physical Depreciation (% Bad) 0%
Depreciated Value $238,974
Economic Depreciation (% Bad) 0%
Functional Depreciation (% Bad) 0%
Total Depreciated Value $238,974
Market Area Factor 1.00
Building Value $238,974
Misc Improvements Value $1,213
Total Improvement Value $240,187

Assessed Land Value $82,550
   
Assessed Total Value $322,737



Addition Summary 
StoryTypeCodeArea
1.00 Storage Utility 32 30
1.00 Covered Porch 18 30
1.00 Covered Porch 18 32
1.00 Res Frame 2Nd Flr FR02 864
 
Other Improvements 
UnitsDescriptionItemCodeYear% BadValue
11x11 DIMENSIONS Canopy w/Floor 1993 55 1213
8x10 DIMENSIONS Shed Personal Property 2000 75
 


Building Sketch
Photograph
Building Sketch Building Photo
(Click sketch for bigger image)




Copyright © 2022 Durham County, North Carolina.