Building Summary

Data last updated on: 4/2/2026     Ownership current as of: 3/30/2026     Tax Year: 2026
REID 168301

PIN # 0841-89-7278

Location Address Property Description
804 HOUNDS CHASE DR CLAYTON CROSSING/LT#14 PL:000144-000028
   
Property Owner Owner's Mailing Address
BROWN, CEAIRA MARKETA
804 HOUNDS CHASE DR
DURHAM NC 27703
Parcel
Buildings
Misc Improvements
Land
Deeds
Notes
Sales
Photos
Map
Building Location Address
804 HOUNDS CHASE DR
Building Description
RESFR-RES-FRM-OR-EQ
Card   of  1
Bldg Type RESIDENTIAL
Units 1
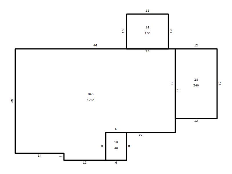
Living Area (SQFT) 1284
Number of Stories 1.00
Style RAN-RANCH
Foundation 04-P-FOOTING/CRWL-SP
Exterior 08-VINYL/ALUMINUM
Const Type
Heating 05-PACKAGE-HEAT/COOL
Air Cond
Plumbing Baths (Full):   2
Baths (Half):   0
Extra Fixtures:   0
Total Plumbing Fixtures:   6 
Bedrooms 3
Main Body (SQFT) 1284
Year Built 2001
Additions 3
Effective Year 2001
Remodeled 0
Interior Adj.
Other Features
Building Total & Improvement Details

Grade C 100%
Percentage Complete 100
Total Adjusted Replacement Cost New $250,155
Physical Depreciation (% Bad) 0%
Depreciated Value $195,121
Economic Depreciation (% Bad) 0%
Functional Depreciation (% Bad) 0%
Total Depreciated Value $195,121
Market Area Factor 1.00
Building Value $195,121
Misc Improvements Value
Total Improvement Value $195,121

Assessed Land Value $83,200
   
Assessed Total Value $278,321



Addition Summary 
StoryTypeCodeArea
1.00 Frame Deck 16 120
1.00 Covered Porch 18 48
1.00 Garage 28 240
 
Other Improvements 
 


Building Sketch
Photograph
Building Sketch Building Photo
(Click sketch for bigger image)




Copyright © 2022 Durham County, North Carolina.