Building Summary

Data last updated on: 3/12/2026     Ownership current as of: 3/6/2026     Tax Year: 2026
REID 168479

PIN # 0842-45-0956

Location Address Property Description
2038 BUFFALO WAY LANDON FARMS @ THE MEADOW S/PH:1A/LT#098 PL:000152-000293
   
Property Owner Owner's Mailing Address
NATALE, BRIAN
2038 BUFFALO WAY
DURHAM NC 27704
Parcel
Buildings
Misc Improvements
Land
Deeds
Notes
Sales
Photos
Map
Building Location Address
2038 BUFFALO WAY
Building Description
RESFR-RES-FRM-OR-EQ
Card   of  1
Bldg Type RESIDENTIAL
Units 1
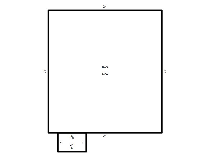
Living Area (SQFT) 1248
Number of Stories 2.00
Style CON-CONVENTIONAL
Foundation 03-CONTINOUS-SLAB
Exterior 08-VINYL/ALUMINUM
Const Type
Heating 05-PACKAGE-HEAT/COOL
Air Cond
Plumbing Baths (Full):   2
Baths (Half):   1
Extra Fixtures:   0
Total Plumbing Fixtures:   8 
Bedrooms 3
Main Body (SQFT) 624
Year Built 2002
Additions 2
Effective Year 2002
Remodeled 0
Interior Adj.
Other Features
Building Total & Improvement Details

Grade C+ 110%
Percentage Complete 100
Total Adjusted Replacement Cost New $246,497
Physical Depreciation (% Bad) 0%
Depreciated Value $194,733
Economic Depreciation (% Bad) 0%
Functional Depreciation (% Bad) 0%
Total Depreciated Value $194,733
Market Area Factor 1.00
Building Value $194,733
Misc Improvements Value $272
Total Improvement Value $195,005

Assessed Land Value $72,500
   
Assessed Total Value $267,505



Addition Summary 
StoryTypeCodeArea
1.00 Covered Porch 18 24
1.00 Res Frame 2Nd Flr FR02 624
 
Other Improvements 
UnitsDescriptionItemCodeYear% BadValue
12x10 DIMENSIONS Shed (Open Pole) 2010 75 272
 


Building Sketch
Photograph
Building Sketch Building Photo
(Click sketch for bigger image)




Copyright © 2022 Durham County, North Carolina.