Building Summary

Data last updated on: 3/13/2026     Ownership current as of: 3/9/2026     Tax Year: 2026
REID 168602

PIN # 0843-40-8542

Location Address Property Description
2021 BUNDY AVE PROP-MARKHAM LAND/LT#096- 098 INCL PL:00018A-000017
   
Property Owner Owner's Mailing Address
VICENTE, MASSIEL ADRIANA NAVARRO SAN;GALAVIZ, MARTIN AGUILAR
2021 BUNDY AVE
DURHAM NC 27704
Parcel
Buildings
Misc Improvements
Land
Deeds
Notes
Sales
Photos
Map
Building Location Address
2021 BUNDY AVE
Building Description
RESFR-RES-FRM-OR-EQ
Card   of  1
Bldg Type RESIDENTIAL
Units 1
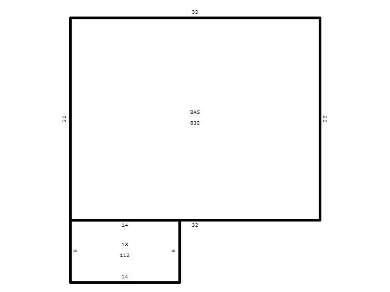
Living Area (SQFT) 832
Number of Stories 1.00
Style RAN-RANCH
Foundation 04-P-FOOTING/CRWL-SP
Exterior 08-VINYL/ALUMINUM
Const Type
Heating 05-PACKAGE-HEAT/COOL
Air Cond
Plumbing Baths (Full):   1
Baths (Half):   0
Extra Fixtures:   0
Total Plumbing Fixtures:   3 
Bedrooms 1
Main Body (SQFT) 832
Year Built 1952
Additions 1
Effective Year 1952
Remodeled 0
Interior Adj.
Other Features
Building Total & Improvement Details

Grade D 75%
Percentage Complete 100
Total Adjusted Replacement Cost New $132,813
Physical Depreciation (% Bad) 0%
Depreciated Value $73,047
Economic Depreciation (% Bad) 0%
Functional Depreciation (% Bad) 0%
Total Depreciated Value $73,047
Market Area Factor 1.00
Building Value $73,047
Misc Improvements Value $18,434
Total Improvement Value $91,481

Assessed Land Value $93,800
   
Assessed Total Value $185,281



Addition Summary 
StoryTypeCodeArea
1.00 Covered Porch 18 112
 
Other Improvements 
UnitsDescriptionItemCodeYear% BadValue
576 SIZE Garage Frame 2003 40 18434
 


Building Sketch
Photograph
Building Sketch Building Photo
(Click sketch for bigger image)




Copyright © 2022 Durham County, North Carolina.