Building Summary

Data last updated on: 4/2/2026     Ownership current as of: 3/30/2026     Tax Year: 2026
REID 168700

PIN # 0843-64-4943

Location Address Property Description
2810 DARROW RD NORTHERN HGHTS BOOTHS/BLK :B/LT#08 PL:000042-000088
   
Property Owner Owner's Mailing Address
LUSTER, DENNIS
2810 DARROW RD
DURHAM NC 27704
Parcel
Buildings
Misc Improvements
Land
Deeds
Notes
Sales
Photos
Map
Building Location Address
2810 DARROW RD
Building Description
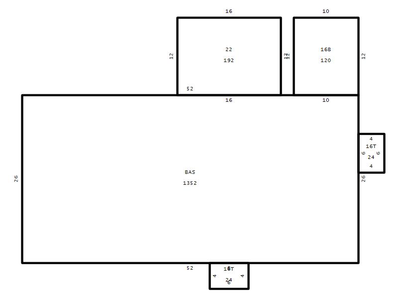
RESFR-RES-FRM-OR-EQ
Card   of  1
Bldg Type RESIDENTIAL
Units 1
Living Area (SQFT) 1352
Number of Stories 1.00
Style RAN-RANCH
Foundation 03-CONTINOUS-SLAB
Exterior 01-WOOD-PANEL
Const Type
Heating 05-PACKAGE-HEAT/COOL
Air Cond
Plumbing Baths (Full):   2
Baths (Half):   0
Extra Fixtures:   0
Total Plumbing Fixtures:   6 
Bedrooms 3
Main Body (SQFT) 1352
Year Built 1975
Additions 4
Effective Year 1975
Remodeled 0
Interior Adj.
Other Features
Building Total & Improvement Details

Grade C 100%
Percentage Complete 100
Total Adjusted Replacement Cost New $248,246
Physical Depreciation (% Bad) 0%
Depreciated Value $211,009
Economic Depreciation (% Bad) 0%
Functional Depreciation (% Bad) 0%
Total Depreciated Value $211,009
Market Area Factor 1.00
Building Value $211,009
Misc Improvements Value $104
Total Improvement Value $211,113

Assessed Land Value $95,625
   
Assessed Total Value $306,738



Addition Summary 
StoryTypeCodeArea
1.00 Concrete Slab 16B 120
1.00 Terrace/Raised Patio 16T 24
1.00 Enclosed Porch 22 192
1.00 Terrace/Raised Patio 16T 24
 
Other Improvements 
UnitsDescriptionItemCodeYear% BadValue
6x10 DIMENSIONS Shed (Open Pole) 1975 75 104
 


Building Sketch
Photograph
Building Sketch Building Photo
(Click sketch for bigger image)




Copyright © 2022 Durham County, North Carolina.