Building Summary

Data last updated on: 4/2/2026     Ownership current as of: 3/30/2026     Tax Year: 2026
REID 168720

PIN # 0843-64-7996

Location Address Property Description
3918 ALAMEDA ST NORTHERN HGHTS BOOTHS/BLK :B/LT#13 PL:000042-000088
   
Property Owner Owner's Mailing Address
SHAW, MARK ZACHARY;HENRY, CAMILLE
3918 ALAMEDA ST
DURHAM NC 27704
Parcel
Buildings
Misc Improvements
Land
Deeds
Notes
Sales
Photos
Map
Building Location Address
3918 ALAMEDA ST
Building Description
RESFR-RES-FRM-OR-EQ
Card   of  1
Bldg Type RESIDENTIAL
Units 1
Living Area (SQFT) 1352
Number of Stories 1.00
Style RAN-RANCH
Foundation 03-CONTINOUS-SLAB
Exterior 08-VINYL/ALUMINUM
Const Type
Heating 05-PACKAGE-HEAT/COOL
Air Cond
Plumbing Baths (Full):   2
Baths (Half):   0
Extra Fixtures:   0
Total Plumbing Fixtures:   6 
Bedrooms 3
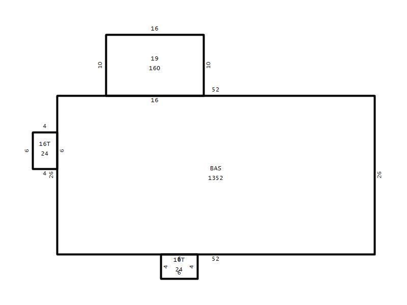
Main Body (SQFT) 1352
Year Built 1975
Additions 3
Effective Year 1975
Remodeled 0
Interior Adj.
Other Features
Building Total & Improvement Details

Grade C-5 95%
Percentage Complete 100
Total Adjusted Replacement Cost New $234,577
Physical Depreciation (% Bad) 0%
Depreciated Value $152,475
Economic Depreciation (% Bad) 0%
Functional Depreciation (% Bad) 0%
Total Depreciated Value $152,475
Market Area Factor 1.00
Building Value $152,475
Misc Improvements Value $28,804
Total Improvement Value $181,279

Assessed Land Value $102,500
   
Assessed Total Value $283,779



Addition Summary 
StoryTypeCodeArea
1.00 Screen Porch 19 160
1.00 Terrace/Raised Patio 16T 24
1.00 Terrace/Raised Patio 16T 24
 
Other Improvements 
UnitsDescriptionItemCodeYear% BadValue
1200 SIZE Garage Frame 1995 50 28804
 


Building Sketch
Photograph
Building Sketch Building Photo
(Click sketch for bigger image)




Copyright © 2022 Durham County, North Carolina.