Building Summary

Data last updated on: 4/2/2026     Ownership current as of: 3/30/2026     Tax Year: 2026
REID 168754

PIN # 0843-85-2534

Location Address Property Description
2922 CADILLAC AVE NORTHERN HGHTS/PROP-ROBER TS CONST CO/LT#03 PL:000144-000105
   
Property Owner Owner's Mailing Address
CHARLES, GEORGE G
2922 CADILLAC AVE
DURHAM NC 27704
Parcel
Buildings
Misc Improvements
Land
Deeds
Notes
Sales
Photos
Map
Building Location Address
2922 CADILLAC AVE
Building Description
RESFR-RES-FRM-OR-EQ
Card   of  1
Bldg Type RESIDENTIAL
Units 1
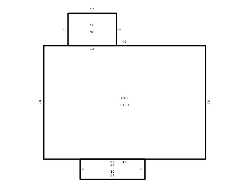
Living Area (SQFT) 1120
Number of Stories 1.00
Style RAN-RANCH
Foundation 04-P-FOOTING/CRWL-SP
Exterior 08-VINYL/ALUMINUM
Const Type
Heating 05-PACKAGE-HEAT/COOL
Air Cond
Plumbing Baths (Full):   2
Baths (Half):   0
Extra Fixtures:   0
Total Plumbing Fixtures:   6 
Bedrooms 3
Main Body (SQFT) 1120
Year Built 1999
Additions 2
Effective Year 1999
Remodeled 0
Interior Adj.
Other Features
Building Total & Improvement Details

Grade C-5 95%
Percentage Complete 100
Total Adjusted Replacement Cost New $206,802
Physical Depreciation (% Bad) 0%
Depreciated Value $159,238
Economic Depreciation (% Bad) 0%
Functional Depreciation (% Bad) 0%
Total Depreciated Value $159,238
Market Area Factor 1.00
Building Value $159,238
Misc Improvements Value
Total Improvement Value $159,238

Assessed Land Value $105,625
   
Assessed Total Value $264,863



Addition Summary 
StoryTypeCodeArea
1.00 Frame Deck 16 96
1.00 Covered Porch 18 80
 
Other Improvements 
 


Building Sketch
Photograph
Building Sketch Building Photo
(Click sketch for bigger image)




Copyright © 2022 Durham County, North Carolina.