Building Summary

Data last updated on: 4/2/2026     Ownership current as of: 3/30/2026     Tax Year: 2026
REID 168865

PIN # 0843-55-6127

Location Address Property Description
2809 DAVIE RD PROP-HANCOCK R G/LT#03 PL:000043-000083
   
Property Owner Owner's Mailing Address
BAF ASSETS 2 LLC
3903 S CONGRESS AVE STE 40298
AUSTIN TX 78704
Parcel
Buildings
Misc Improvements
Land
Deeds
Notes
Sales
Photos
Map
Building Location Address
2809 DAVIE RD
Building Description
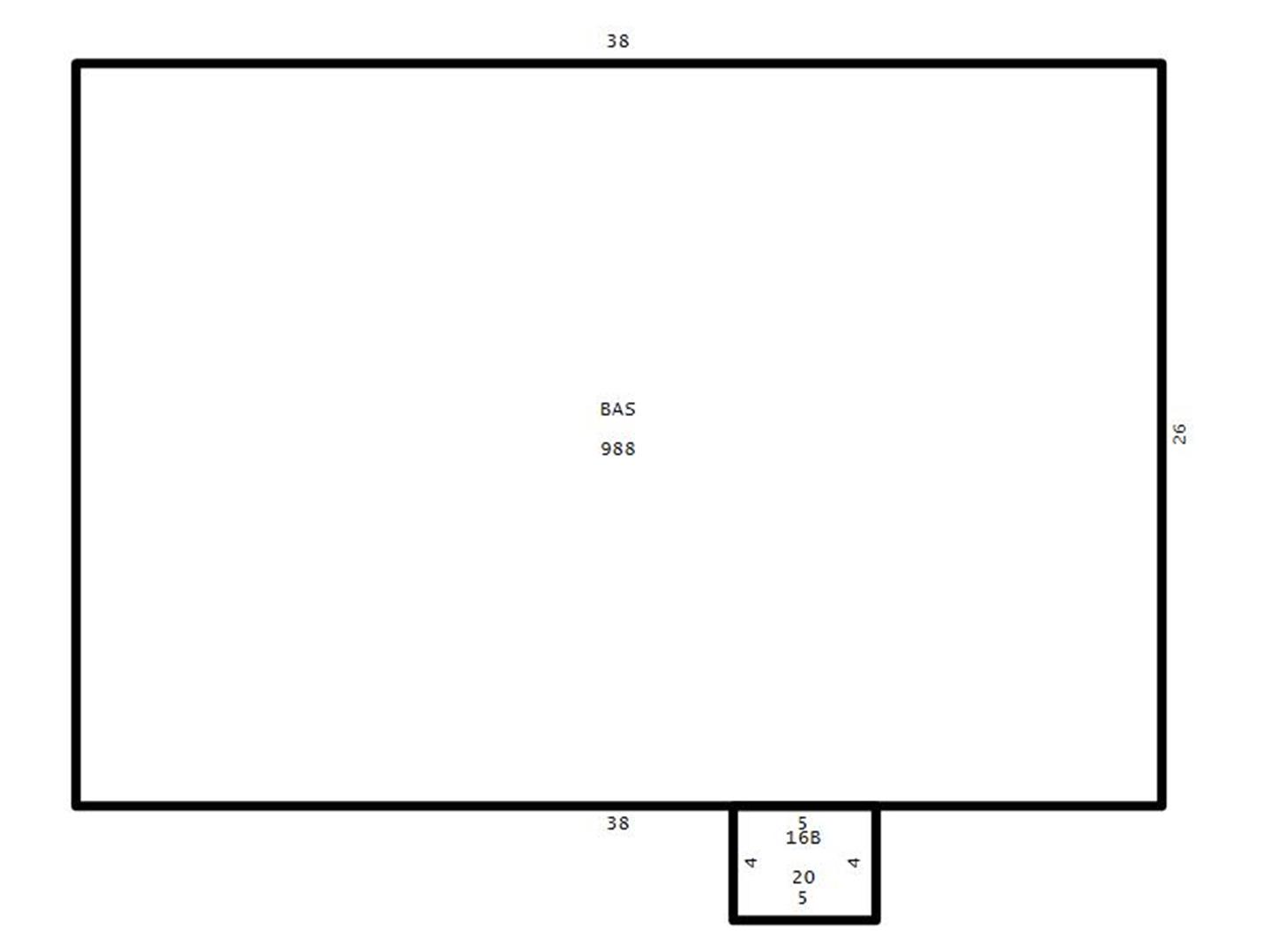
RESMS-RES-MS-OR-EQ
Card   of  1
Bldg Type RESIDENTIAL
Units 1
Living Area (SQFT) 988
Number of Stories 1.00
Style RAN-RANCH
Foundation 04-P-FOOTING/CRWL-SP
Exterior 02-BRICK
Const Type
Heating 05-PACKAGE-HEAT/COOL
Air Cond
Plumbing Baths (Full):   1
Baths (Half):   0
Extra Fixtures:   0
Total Plumbing Fixtures:   3 
Bedrooms 3
Main Body (SQFT) 988
Year Built 1961
Additions 1
Effective Year 1961
Remodeled 0
Interior Adj.
Other Features
Building Total & Improvement Details

Grade C-5 95%
Percentage Complete 100
Total Adjusted Replacement Cost New $188,336
Physical Depreciation (% Bad) 0%
Depreciated Value $103,585
Economic Depreciation (% Bad) 0%
Functional Depreciation (% Bad) 0%
Total Depreciated Value $103,585
Market Area Factor 1.00
Building Value $103,585
Misc Improvements Value $245
Total Improvement Value $103,830

Assessed Land Value $93,750
   
Assessed Total Value $197,580



Addition Summary 
StoryTypeCodeArea
1.00 Concrete Slab 16B 20
 
Other Improvements 
UnitsDescriptionItemCodeYear% BadValue
12x12 DIMENSIONS Shed (Open Pole) 1961 75 245
 


Building Sketch
Photograph
Building Sketch Building Photo
(Click sketch for bigger image)




Copyright © 2022 Durham County, North Carolina.