Building Summary

Data last updated on: 4/2/2026     Ownership current as of: 3/30/2026     Tax Year: 2026
REID 169017

PIN # 0843-66-1367

Location Address Property Description
3815 WEYBURN RD BONNY HILLS/SEC:01/LT#17 PL:000047-000060
   
Property Owner Owner's Mailing Address
TULE RIVER HOMEBUYER EARNED EQUITY AGENCY INC
3815 WEYBURN RD
DURHAM NC 27704
Parcel
Buildings
Misc Improvements
Land
Deeds
Notes
Sales
Photos
Map
Building Location Address
3815 WEYBURN RD
Building Description
RESMS-RES-MS-OR-EQ
Card   of  1
Bldg Type RESIDENTIAL
Units 1
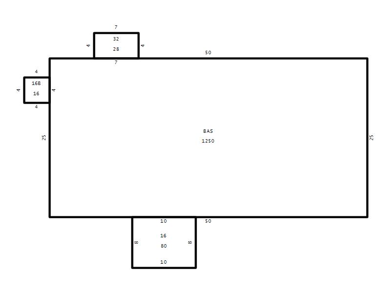
Living Area (SQFT) 1250
Number of Stories 1.00
Style RAN-RANCH
Foundation 04-P-FOOTING/CRWL-SP
Exterior 02-BRICK
Const Type
Heating 05-PACKAGE-HEAT/COOL
Air Cond
Plumbing Baths (Full):   2
Baths (Half):   0
Extra Fixtures:   0
Total Plumbing Fixtures:   6 
Bedrooms 3
Main Body (SQFT) 1250
Year Built 1969
Additions 3
Effective Year 1969
Remodeled 0
Interior Adj.
Other Features
Building Total & Improvement Details

Grade C-5 95%
Percentage Complete 100
Total Adjusted Replacement Cost New $236,082
Physical Depreciation (% Bad) 0%
Depreciated Value $146,371
Economic Depreciation (% Bad) 0%
Functional Depreciation (% Bad) 0%
Total Depreciated Value $146,371
Market Area Factor 1.00
Building Value $146,371
Misc Improvements Value $1,156
Total Improvement Value $147,527

Assessed Land Value $91,875
   
Assessed Total Value $239,402



Addition Summary 
StoryTypeCodeArea
1.00 Frame Deck 16 80
1.00 Concrete Slab 16B 16
1.00 Storage Utility 32 28
 
Other Improvements 
UnitsDescriptionItemCodeYear% BadValue
12x10 DIMENSIONS Shed (Open Pole) 1985 75 272
12x12 DIMENSIONS Shed (Open Pole) 1969 75 245
12x20 DIMENSIONS Prefab Metal Car Shed 1969 50 639
 


Building Sketch
Photograph
Building Sketch Building Photo
(Click sketch for bigger image)




Copyright © 2022 Durham County, North Carolina.