Building Summary

Data last updated on: 4/2/2026     Ownership current as of: 3/30/2026     Tax Year: 2026
REID 169038

PIN # 0843-65-3329

Location Address Property Description
3821 ALAMEDA ST PROP-MARQUIS DAVID & MIKE LS LORRIE W PL:000000-000000
   
Property Owner Owner's Mailing Address
ROSALES-GALDAMEZ, NEFTALI DE JESUS;VILLANUEVA, NORMA L SANCHEZ
3821 ALAMEDA ST
DURHAM NC 27704
Parcel
Buildings
Misc Improvements
Land
Deeds
Notes
Sales
Photos
Map
Building Location Address
3821 ALAMEDA ST
Building Description
RESFR-RES-FRM-OR-EQ
Card   of  1
Bldg Type RESIDENTIAL
Units 1
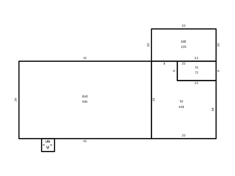
Living Area (SQFT) 984
Number of Stories 1.00
Style RAN-RANCH
Foundation 04-P-FOOTING/CRWL-SP
Exterior 08-VINYL/ALUMINUM
Const Type
Heating 02-RAD/ELEC/BB/WATR
Air Cond
Plumbing Baths (Full):   1
Baths (Half):   0
Extra Fixtures:   0
Total Plumbing Fixtures:   3 
Bedrooms 3
Main Body (SQFT) 984
Year Built 1962
Additions 4
Effective Year 1962
Remodeled 0
Interior Adj.
Other Features
Building Total & Improvement Details

Grade C-5 95%
Percentage Complete 100
Total Adjusted Replacement Cost New $189,570
Physical Depreciation (% Bad) 0%
Depreciated Value $106,159
Economic Depreciation (% Bad) 0%
Functional Depreciation (% Bad) 0%
Total Depreciated Value $106,159
Market Area Factor 1.00
Building Value $106,159
Misc Improvements Value $10,239
Total Improvement Value $116,398

Assessed Land Value $91,250
   
Assessed Total Value $207,648



Addition Summary 
StoryTypeCodeArea
1.00 Concrete Slab 16B 16
1.00 Carport 30 408
1.00 Storage Utility 32 72
1.00 Concrete Slab 16B 200
 
Other Improvements 
UnitsDescriptionItemCodeYear% BadValue
480 SIZE Garage Frame 1980 65 8961
12x20 DIMENSIONS Prefab Metal Car Shed Enclosed 1962 50 1278
 


Building Sketch
Photograph
Building Sketch Building Photo
(Click sketch for bigger image)




Copyright © 2022 Durham County, North Carolina.