Building Summary

Data last updated on: 4/1/2026     Ownership current as of: 3/27/2026     Tax Year: 2026
REID 169090

PIN # 0843-78-1367

Location Address Property Description
4110 AMBER STONE WAY GLENNSTONE/PH:01/LT#056 PL:000155-000071
   
Property Owner Owner's Mailing Address
ZUNIGA, MARIO FERNANDO REYES;IRIARTE, NOLVIA ELIZABETH TORRES
4110 AMBER STONE WAY
DURHAM NC 27704
Parcel
Buildings
Misc Improvements
Land
Deeds
Notes
Sales
Photos
Map
Building Location Address
4110 AMBER STONE WAY
Building Description
RESFR-RES-FRM-OR-EQ
Card   of  1
Bldg Type RESIDENTIAL
Units 1
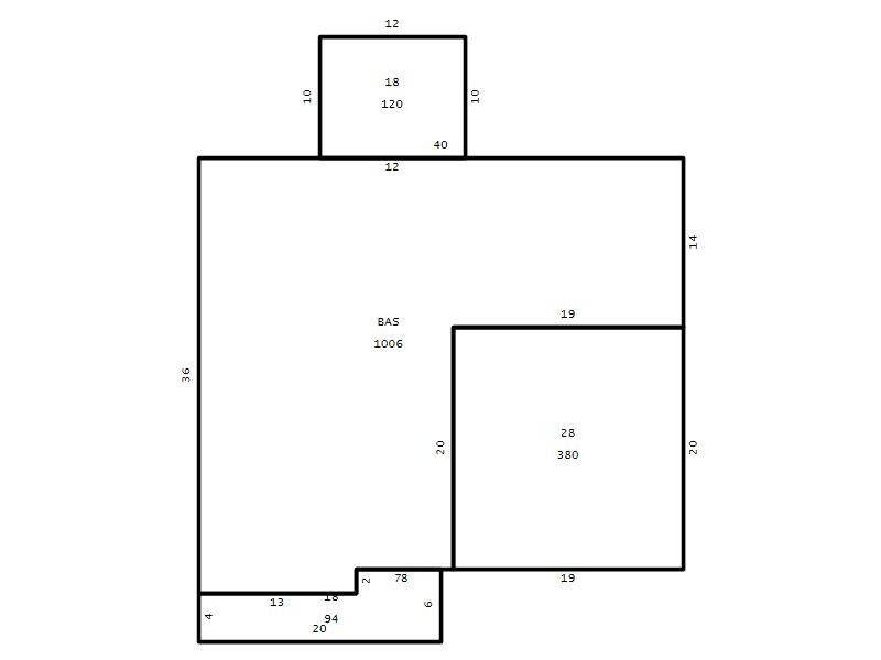
Living Area (SQFT) 2392
Number of Stories 2.00
Style CON-CONVENTIONAL
Foundation 03-CONTINOUS-SLAB
Exterior 08-VINYL/ALUMINUM
Const Type
Heating 05-PACKAGE-HEAT/COOL
Air Cond
Plumbing Baths (Full):   2
Baths (Half):   1
Extra Fixtures:   0
Total Plumbing Fixtures:   8 
Bedrooms 4
Main Body (SQFT) 1006
Year Built 2003
Additions 5
Effective Year 2003
Remodeled 0
Interior Adj.
Other Features
Building Total & Improvement Details

Grade C+ 110%
Percentage Complete 100
Total Adjusted Replacement Cost New $420,773
Physical Depreciation (% Bad) 0%
Depreciated Value $336,618
Economic Depreciation (% Bad) 0%
Functional Depreciation (% Bad) 0%
Total Depreciated Value $336,618
Market Area Factor 1.00
Building Value $336,618
Misc Improvements Value $1,047
Total Improvement Value $337,665

Assessed Land Value $80,000
   
Assessed Total Value $417,665



Addition Summary 
StoryTypeCodeArea
1.00 Covered Porch 18 94
1.00 Garage 28 380
1.00 Covered Porch 18 120
1.00 Res Frame 2Nd Flr FR02 1006
1.00 Res Frm 2Nd Flr Over Garg FR02 380
 
Other Improvements 
UnitsDescriptionItemCodeYear% BadValue
10x12 DIMENSIONS Patio 2003 40 1047
 


Building Sketch
Photograph
Building Sketch Building Photo
(Click sketch for bigger image)




Copyright © 2022 Durham County, North Carolina.