Building Summary

Data last updated on: 4/1/2026     Ownership current as of: 3/27/2026     Tax Year: 2026
REID 169097

PIN # 0843-78-4030

Location Address Property Description
4126 AMBER STONE WAY GLENNSTONE/PH:01/LT#063 PL:000155-000071
   
Property Owner Owner's Mailing Address
GLOVER, JONEISE
4126 AMBER STONE WAY
DURHAM NC 27704
Parcel
Buildings
Misc Improvements
Land
Deeds
Notes
Sales
Photos
Map
Building Location Address
4126 AMBER STONE WAY
Building Description
RESFR-RES-FRM-OR-EQ
Card   of  1
Bldg Type RESIDENTIAL
Units 1
Living Area (SQFT) 2240
Number of Stories 2.00
Style CON-CONVENTIONAL
Foundation 03-CONTINOUS-SLAB
Exterior 08-VINYL/ALUMINUM
Const Type
Heating 05-PACKAGE-HEAT/COOL
Air Cond
Plumbing Baths (Full):   2
Baths (Half):   1
Extra Fixtures:   0
Total Plumbing Fixtures:   8 
Bedrooms 3
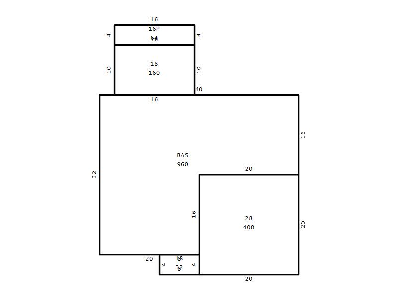
Main Body (SQFT) 960
Year Built 2003
Additions 6
Effective Year 2003
Remodeled 0
Interior Adj.
Other Features
Building Total & Improvement Details

Grade C+ 110%
Percentage Complete 100
Total Adjusted Replacement Cost New $400,049
Physical Depreciation (% Bad) 0%
Depreciated Value $320,039
Economic Depreciation (% Bad) 0%
Functional Depreciation (% Bad) 0%
Total Depreciated Value $320,039
Market Area Factor 1.00
Building Value $320,039
Misc Improvements Value
Total Improvement Value $320,039

Assessed Land Value $75,625
   
Assessed Total Value $395,664



Addition Summary 
StoryTypeCodeArea
1.00 Patio 16P 64
1.00 Covered Porch 18 32
1.00 Garage 28 400
1.00 Covered Porch 18 160
1.00 Res Frame 2Nd Flr FR02 960
1.00 Res Frm 2Nd Flr Over Garg FR02 320
 
Other Improvements 
 


Building Sketch
Photograph
Building Sketch Building Photo
(Click sketch for bigger image)




Copyright © 2022 Durham County, North Carolina.