Building Summary

Data last updated on: 2/13/2026     Ownership current as of: 2/10/2026     Tax Year: 2026
REID 107026

PIN # 0820-37-4528

Location Address Property Description
2146 29 CHARLES ST CHARLES SQR TWNHMS/PH:02/ LT#29 TYPE-03/BN/FN/GN PL:000118-000099
   
Property Owner Owner's Mailing Address
RIGGINS, BRITTNEY M
2146 CHARLES ST #29
DURHAM NC 27707
Parcel
Buildings
Misc Improvements
Land
Deeds
Notes
Sales
Photos
Map
Building Location Address
2146 CHARLES ST
Building Description
TENFR-TWNHS-E-UN-FR
Card   of  1
Bldg Type RESIDENTIAL
Units 1
Living Area (SQFT) 1080
Number of Stories 2.00
Style TWN-TWNHS/ATTC-RW-TP
Foundation 03-CONTINOUS-SLAB
Exterior 01-WOOD-PANEL
Const Type
Heating 05-PACKAGE-HEAT/COOL
Air Cond
Plumbing Baths (Full):   1
Baths (Half):   1
Extra Fixtures:   0
Total Plumbing Fixtures:   5 
Bedrooms 2
Main Body (SQFT) 520
Year Built 1988
Additions 5
Effective Year 1988
Remodeled 0
Interior Adj.
Other Features
Building Total & Improvement Details

Grade C 100%
Percentage Complete 100
Total Adjusted Replacement Cost New $201,802
Physical Depreciation (% Bad) 0%
Depreciated Value $143,279
Economic Depreciation (% Bad) 0%
Functional Depreciation (% Bad) 0%
Total Depreciated Value $143,279
Market Area Factor 1.00
Building Value $143,279
Misc Improvements Value
Total Improvement Value $143,279

Assessed Land Value $68,000
   
Assessed Total Value $211,279



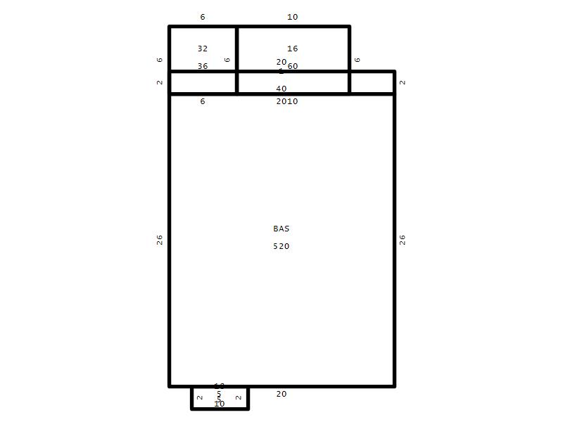
Addition Summary 
StoryTypeCodeArea
1.00 Overhang 01 40
1.00 Frame Deck 16 60
1.00 Covered Porch 18 10
1.00 Storage Utility 32 36
1.00 Res Frame 2Nd Flr FR02 520
 
Other Improvements 
 


Building Sketch
Photograph
Building Sketch Building Photo
(Click sketch for bigger image)




Copyright © 2022 Durham County, North Carolina.