Building Summary

Data last updated on: 3/13/2026     Ownership current as of: 3/9/2026     Tax Year: 2026
REID 169435

PIN # 0843-92-1187

Location Address Property Description
3029 INTERCROSS RD PROP-TILLEY PL:000000-000000
   
Property Owner Owner's Mailing Address
TILLEY, DONNIE M;TILLEY, PATRICIA P
3029 INTERCROSS RD
DURHAM NC 27704
Parcel
Buildings
Misc Improvements
Land
Deeds
Notes
Sales
Photos
Map
Building Location Address
3029 INTERCROSS RD
Building Description
RESMS-RES-MS-OR-EQ
Card   of  1
Bldg Type RESIDENTIAL
Units 1
Living Area (SQFT) 1120
Number of Stories 1.00
Style RAN-RANCH
Foundation 04-P-FOOTING/CRWL-SP
Exterior 02-BRICK
Const Type
Heating 05-PACKAGE-HEAT/COOL
Air Cond
Plumbing Baths (Full):   1
Baths (Half):   0
Extra Fixtures:   0
Total Plumbing Fixtures:   3 
Bedrooms 3
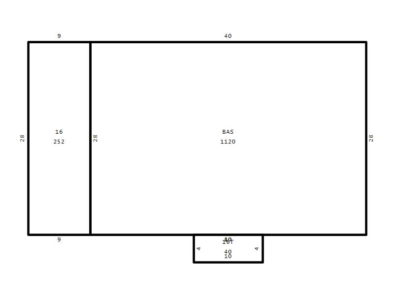
Main Body (SQFT) 1120
Year Built 1964
Additions 2
Effective Year 1964
Remodeled 0
Interior Adj.
Other Features
Building Total & Improvement Details

Grade C 100%
Percentage Complete 100
Total Adjusted Replacement Cost New $224,383
Physical Depreciation (% Bad) 0%
Depreciated Value $130,142
Economic Depreciation (% Bad) 0%
Functional Depreciation (% Bad) 0%
Total Depreciated Value $130,142
Market Area Factor 1.00
Building Value $130,142
Misc Improvements Value $616
Total Improvement Value $130,758

Assessed Land Value $110,600
   
Assessed Total Value $241,358



Addition Summary 
StoryTypeCodeArea
1.00 Frame Deck 16 252
1.00 Terrace/Raised Patio 16T 40
 
Other Improvements 
UnitsDescriptionItemCodeYear% BadValue
40 SIZE Patio 1964 0 616
12x12 DIMENSIONS Shed Personal Property 1964 75
10x10 DIMENSIONS Shed Personal Property 1964 75
 


Building Sketch
Photograph
Building Sketch Building Photo
(Click sketch for bigger image)




Copyright © 2022 Durham County, North Carolina.