Building Summary

Data last updated on: 3/13/2026     Ownership current as of: 3/9/2026     Tax Year: 2026
REID 169885

PIN # 0862-02-1126

Location Address Property Description
4222 ROGERS RD PROP-RIGSBEE SAMUEL-MICHA EL RIGSBEE/LT#02 PL:000146-000189
   
Property Owner Owner's Mailing Address
CERON, LUIS IVAN ARANDA;HUERTA, GLORIA SANCHEZ
4222 ROGERS RD
DURHAM NC 27703
Parcel
Buildings
Misc Improvements
Land
Deeds
Notes
Sales
Photos
Map
Building Location Address
4222 ROGERS RD
Building Description
RESFR-RES-FRM-OR-EQ
Card   of  1
Bldg Type RESIDENTIAL
Units 1
Living Area (SQFT) 2891
Number of Stories 2.00
Style CAP-CAPE-COD
Foundation 04-P-FOOTING/CRWL-SP
Exterior 09-HARD-B/CEMENTBRD
Const Type
Heating 06-HEAT-PUMP
Air Cond
Plumbing Baths (Full):   2
Baths (Half):   1
Extra Fixtures:   0
Total Plumbing Fixtures:   8 
Bedrooms 3
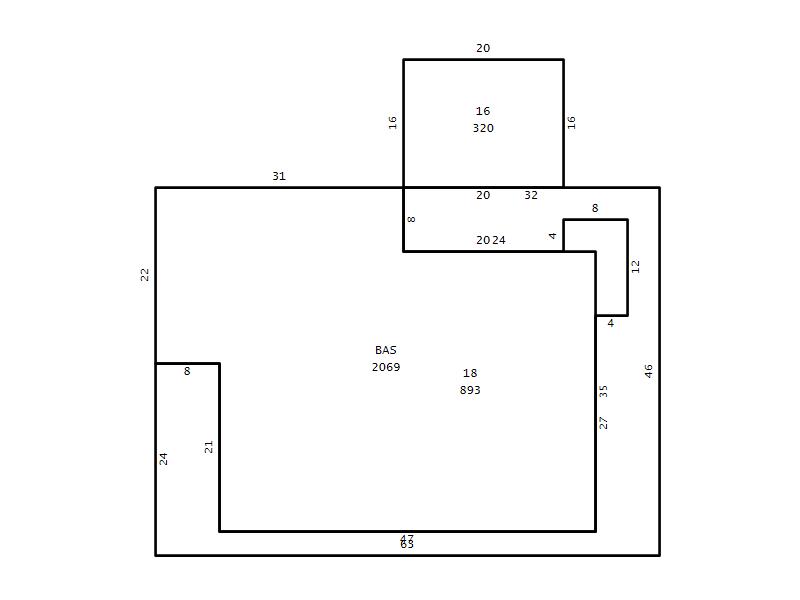
Main Body (SQFT) 2069
Year Built 2001
Additions 3
Effective Year 2001
Remodeled 0
Interior Adj.
Other Features
Building Total & Improvement Details

Grade B- 115%
Percentage Complete 100
Total Adjusted Replacement Cost New $508,392
Physical Depreciation (% Bad) 0%
Depreciated Value $457,553
Economic Depreciation (% Bad) 0%
Functional Depreciation (% Bad) 0%
Total Depreciated Value $457,553
Market Area Factor 1.00
Building Value $457,553
Misc Improvements Value
Total Improvement Value $457,553

Assessed Land Value $352,000
   
Assessed Total Value $809,553



Addition Summary 
StoryTypeCodeArea
1.00 Frame Deck 16 320
1.00 Covered Porch 18 893
1.00 Res Frame 2Nd Flr FR02 822
 
Other Improvements 
UnitsDescriptionItemCodeYear% BadValue
8x12 DIMENSIONS Shed Personal Property 2005 75
10x12 DIMENSIONS Shed Personal Property 2005 75
 


Building Sketch
Photograph
Building Sketch Building Photo
(Click sketch for bigger image)




Copyright © 2022 Durham County, North Carolina.