Building Summary

Data last updated on: 3/13/2026     Ownership current as of: 3/9/2026     Tax Year: 2026
REID 169893

PIN # 0862-00-5839

Location Address Property Description
4212 FIESTA RD PROP-FLETCHER LEWIS W & W IFE PATRICIA H/LT#03 PL:000129-000214
   
Property Owner Owner's Mailing Address
TWIETMEYER, JONATHAN E;TWIETMEYER, MIKA J
4212 FIESTA RD
DURHAM NC 27703
Parcel
Buildings
Misc Improvements
Land
Deeds
Notes
Sales
Photos
Map
Building Location Address
4212 FIESTA RD
Building Description
RESFR-RES-FRM-OR-EQ
Card   of  1
Bldg Type RESIDENTIAL
Units 1
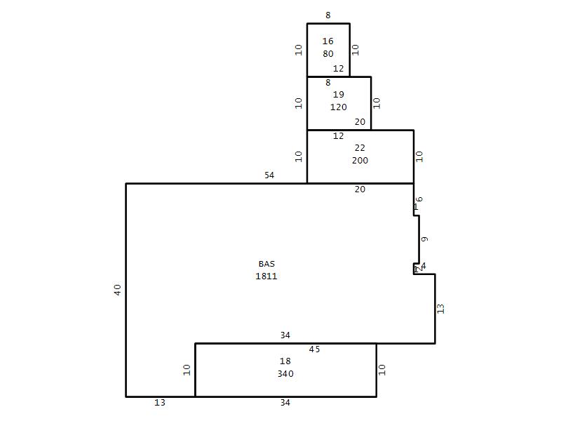
Living Area (SQFT) 1811
Number of Stories 1.00
Style RAN-RANCH
Foundation 04-P-FOOTING/CRWL-SP
Exterior 08-VINYL/ALUMINUM
Const Type
Heating 06-HEAT-PUMP
Air Cond
Plumbing Baths (Full):   2
Baths (Half):   1
Extra Fixtures:   0
Total Plumbing Fixtures:   8 
Bedrooms 4
Main Body (SQFT) 1811
Year Built 1984
Additions 6
Effective Year 1984
Remodeled 0
Interior Adj.
Other Features
Building Total & Improvement Details

Grade C+ 110%
Percentage Complete 100
Total Adjusted Replacement Cost New $432,273
Physical Depreciation (% Bad) 0%
Depreciated Value $332,850
Economic Depreciation (% Bad) 0%
Functional Depreciation (% Bad) 0%
Total Depreciated Value $332,850
Market Area Factor 1.00
Building Value $332,850
Misc Improvements Value $25,930
Total Improvement Value $358,780

Assessed Land Value $204,788
   
Assessed Total Value $563,568



Addition Summary 
StoryTypeCodeArea
1.00 Frame Deck 16 80
1.00 Covered Porch 18 340
1.00 Screen Porch 19 120
1.00 Enclosed Porch 22 200
1.00 Basement Garage BG 2
1.00 Unfinished Basement 10 1620
 
Other Improvements 
UnitsDescriptionItemCodeYear% BadValue
20x20 DIMENSIONS Carport w/Floor 1984 65 4507
35x25 DIMENSIONS Garage Frame 2003 40 21423
 


Building Sketch
Photograph
Building Sketch Building Photo
(Click sketch for bigger image)




Copyright © 2022 Durham County, North Carolina.