Building Summary

Data last updated on: 3/13/2026     Ownership current as of: 3/9/2026     Tax Year: 2026
REID 169910

PIN # 0852-92-2537

Location Address Property Description
1822 PENROD RD ROTUND HILLS/BLK:B/SEC:07 /LT#17 PL:000059-000056
   
Property Owner Owner's Mailing Address
RAMOS, JESUS A RODRIGUEZ;TOLEDO, KENYA
1822 PENROD RD
DURHAM NC 27703
Parcel
Buildings
Misc Improvements
Land
Deeds
Notes
Sales
Photos
Map
Building Location Address
1822 PENROD RD
Building Description
RESMS-RES-MS-OR-EQ
Card   of  1
Bldg Type RESIDENTIAL
Units 1
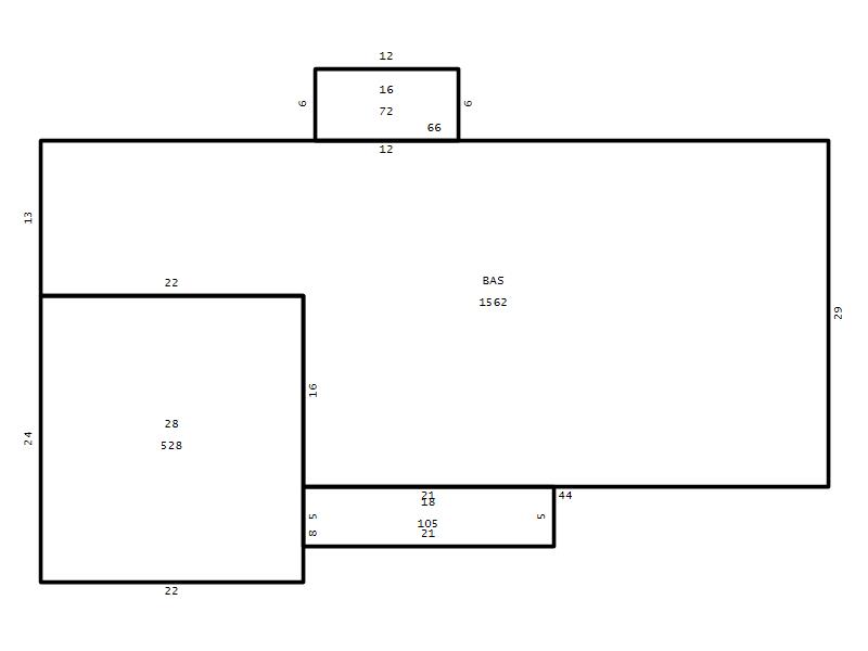
Living Area (SQFT) 1562
Number of Stories 1.00
Style RAN-RANCH
Foundation 04-P-FOOTING/CRWL-SP
Exterior 02-BRICK
Const Type
Heating 02-RAD/ELEC/BB/WATR
Air Cond
Plumbing Baths (Full):   2
Baths (Half):   0
Extra Fixtures:   0
Total Plumbing Fixtures:   6 
Bedrooms 3
Main Body (SQFT) 1562
Year Built 1968
Additions 3
Effective Year 1968
Remodeled 0
Interior Adj.
Other Features
Building Total & Improvement Details

Grade C+ 110%
Percentage Complete 100
Total Adjusted Replacement Cost New $329,196
Physical Depreciation (% Bad) 0%
Depreciated Value $200,810
Economic Depreciation (% Bad) 0%
Functional Depreciation (% Bad) 0%
Total Depreciated Value $200,810
Market Area Factor 1.00
Building Value $200,810
Misc Improvements Value
Total Improvement Value $200,810

Assessed Land Value $91,250
   
Assessed Total Value $292,060



Addition Summary 
StoryTypeCodeArea
1.00 Frame Deck 16 72
1.00 Covered Porch 18 105
1.00 Garage 28 528
 
Other Improvements 
 


Building Sketch
Photograph
Building Sketch Building Photo
(Click sketch for bigger image)




Copyright © 2022 Durham County, North Carolina.